Совершенно не факт, что вы удивитесь, но концепция зданий смешанного использования вполне исторична. В европейских городах доиндустриальной эпохи на нижних этажах своих домов горожане, как правило, устраивали торговые лавки или ремесленные мастерские, то есть свой бизнес, а жили при этом на верхних: симбиоз коммерческой и жилой части дома зародился уже тогда. Разделение функций произошло с наступлением промышленной революции, когда ремесленные и производственные мастерские вынесли в отдельные здания — фабрики и заводы. Появились и новые типы населенных пунктов — моногорода, построенные, что называется, с нуля вокруг одного предприятия. Принципы градостроительства сводились к простой аксиоме: «одна функция — одно здание».
О концепции многофункционального проектирования вновь заговорили в конце прошлого века, когда промышленность пришла в упадок. Жители городов пожинали плоды ускоренных темпов индустриализации, а градообразующие предприятия утратили свое значение. В нынешнюю постиндустриальную эпоху с уплотнением и ростом городской вертикальной оси идея смешанного использования зданий особенно актуальна. Эффективнее всего она реализуется в жилых кварталах многоквартирных домов. «Сегодня мы строим комплексы в пятьсот тысяч квадратных метров. Такие количественные изменения влекут за собой определенные последствия. Одно из них в том, что теперь мы имеем дело со многофункциональными зданиями, поскольку сооружение такого масштаба уже не может служить для какой‑то единой цели», — считает архитектор, теоретик, урбанист Рем Колхас.

Район Найн-Элмс, визуализация. Криволинейное здание на переднем плане, зеленые сады на крыше бывшей угольной электростанции Баттерси и ряд многоэтажных комплексов вокруг команда Нормана Фостера и бюро Фрэнка Гери завершат в 2023 г. Фото: © 2020 Nine Elms on the South Bank
Девелоперы и архитектурные бюро стремятся дать адекватный ответ на быстро меняющиеся запросы жителей к городской среде, удовлетворить интересы всех. И если раньше они предлагали проекты mixed-use, следуя модному тренду и спросу на «все в одном», то сегодня подходят к вопросу избирательно, стараясь сделать каждый проект особенным. Для конкуренции на рынке простого смешения функций в одном объекте уже недостаточно: чтобы побороться за «почетное звание объекта высокой культуры быта» нужна та самая изюминка, которая привлечет потенциального жильца, покупателя, арендодателя. К новому ЖК сегодня, как правило, прилагается целая программа развития территории и будущего комьюнити. То есть рассматривают их не как автономный анклав, а как зону влияния.
Посмотрим на западных и отечественных примерах, как проектные организации и девелоперские компании диверсифицируют mixed-use-предложения.
Южный берег Темзы
В южной части Лондона между Ламбетским мостом и мостом Челси раскинулся район Найн-Элмс («Девять вязов») — последний оставшийся промышленный участок южного берега Темзы. Сегодня это активно развиваемая территория в 227 га и с 16 000 новых домов. Если не считать реконструкцию бывшей угольной электростанции Баттерси, стартовавшую в 2010 г., то все началось с планов посольства США переехать сюда, объявленных еще в октябре 2008 г., а само событие случилось уже в 2018‑м. Позже посольство Нидерландов в Лондоне, а по слухам, и китайское тоже, заявили, что намерены сменить Гайд-парк Гейт на южный берег Темзы. Поэтому местный совет поддержал инициативу международной девелоперской компании Ballymore Group по развитию 15 акров земли вокруг новой посольской резиденции. Проект Embassy Gardens — до 1 982 новых домов, а также магазины, кафе, бары, рестораны, бизнес-центры, отель на 100 мест, оздоровительный центр, детские игровые площадки и спортивные площадки. В него было вложено 2,5 млрд фунтов стерлингов, а первые 25 квартир с видом на открытый бассейн под небом между двумя башнями-высотками комплекса, завершенного в 2017 г., легко ушли за миллион фунтов стерлингов каждая. Вслед за «посольскими садами» проекты появляются один за другим, привлекая миллиардные инвестиции в регенерацию всего района. Крупнейший из них — расширение Северной линии лондонского метро. Когда его завершат в 2021 г., понадобится всего 15 минут, чтобы добраться в Сити и Вест-Энд. В настоящее время ведется строительство около 15 объектов смешанного использования. Именно такой формат привлекает сюда креативную молодежь, продвинутых горожан и штаб-квартиры известных компаний.
«Теперь мы имеем дело со многофункциональными зданиями, поскольку сооружение такого масштаба уже не может служить для какой‑то единой цели», — Рем Колхас
В прошлом году бюро сэра Нормана Фостера завершило в Найн-Элмс строительство The Corniche — многоцелевого комплекса из трех скругленных башен вдоль Набережной Альберта. Это аллюзия на другой Корниш — ту самую живописную дорогу вдоль моря на Французской Ривьере, связывающую Ниццу и Монте-Карло. И хотя тут вместо средиземной лазури лишь серые воды Темзы, вид не менее впечатляющий: прямо напротив, на том берегу реки, красуется абрис Вестминстерского дворца и видна знаменитая галерея «Тейт», а гигантский «Лондонский глаз», небоскреб The Shard Ренцо Пьяно и высотки Сити — такая же часть панорамы.
Высота зданий The Corniche варьируется от 15 до 27 этажей, а их архитектуру определяют большие полукруглые эркеры и балконы. В них 253 квартиры, включая доступное жилье для пожилых людей, а также офисы, рестораны и бар для жителей комплекса, тренажерный зал, бассейн и SPA. Он также включает рестораны и тихие сады, которые экранированы и защищены от дороги ландшафтным водным элементом и зонами отдыха. Комбинация рабочих мест с новыми публичными пространствами, общественными объектами и исключительным жильем в сочетании с динамичным миксом различных активностей значительно оживит и преобразит эту часть набережной в центре Лондона.
The Corniche
Локация: Лондон, Великобритания
Площадь: 33 000 кв. м
Высота: 85 м
Количество квартир: 253
Статус объекта: завершен в 2019 г.
Архитектура: Foster + Partners
Строительство: Davies, Maguire + Whitby
Ландшафтная архитектура: Townshend Landscape Architects
Заказчик: St James Group Ltd.
Инженер-эколог: Hoare Lea
Функции: квартиры, офисы, рестораны, бар, сады, спортзал, SPA, бассейн, подземный паркинг

Многофункциональный комплекс The Corniche. Вид с Темзы. Архитектура: Foster + Partners, 2019 г. Фото: Design Curial. www.designcurial.com
«Еще во время учебы я изучал не только здания, но и публичные пространства — Пьяцца-дель-Кампо в Сиене, главную площадь Вероны, даже Шеперд Маркет здесь, в Мейфэре, Батский цирк, — рассказывает сэр Норман Фостер. — Меня интересовали общественные надстройки зданий, то, что мы обычно называем инфраструктурой, общественным пространством. Мой интерес никогда не ограничивался зданием в отдельности. Это не значит, что я, как архитектор, не увлечен их дизайном. Но я не могу отделить его от ближайшего окружения, что может объяснить, почему оно поднимается вверх, если посмотреть на любую высокую башню — Гонконгский или Шанхайский банк. Общественное пространство как бы растекается под ними. Если взять штаб-квартиру Commerzbank во Франкфурте, она взаимодействует с городом: есть, скажем, общий ресторан для горожан и жителей дома. Я мог бы продолжить. Так что это больше, чем просто отдельно взятое здание. Идея состоит в том, чтобы вернуть что‑то сообществу, частью которого объект является».
Реализацией The Corniche команда Фостера внесла свой вклад в масштабную регенерацию зоны Найн-Элмс — крупнейшей городской инициативы такого рода в Европе. В 2023 г. вместе с бюро Фрэнка Гери они планируют завершить третью часть реконструкции электростанции Баттерси — главную улицу Электрический бульвар, что соединит ее с расширением Северной линии метро и 1 300 новых домов в двух зонах по обе стороны бульвара, включая 103 единицы доступного жилья, а также отель на 160 номеров, торговые площади, рестораны и развлекательные заведения. К слову, архитектурное бюро самого сэра Нормана находится в этом же районе, в Баттерси-парке, а семья архитектора живет тут же, в пентхаусе, где три первых этажа занимает офис, а промежуточные пять — квартиры.
«Если вы посмотрите на связь между городами и тем, сколько они потребляют энергии, вы увидите, что чем города компактнее, тем они меньше ее потребляют. Традиционно самые привлекательные города для жизни весьма компактны. К примеру, многие влюблены в Венецию. Там нет автомобилей, город очень компактен, и в нем много общественных пространств. Или Лондон: Белгравия, Кенсингтон и Челси тоже очень компактны. Они также самые привлекательные районы для жизни, и недвижимость здесь самая дорогая в городе. Здесь нет индивидуальных парков, зато тут много красивых общественных скверов и площадей. Поэтому тенденция строительства очень компактных и густонаселенных городов, независимо от того, будут ли в них присутствовать небоскребы или нет, продолжится. Уверен, что компактные города — экологически благоприятный выбор, и они предполагают более высокое качество жизни».
Сингапурское чудо, или Заветы Ли Куан Ю
В августе 2007 г. в ежегодном обращении к народу премьер-министр Сингапура Ли Сянь Лун объявил о запуске масштабного плана развития Пунггола — региона на северо-востоке страны, известного до этого разве что полями с иланг-илангом. «Пунггол 21+» — часть концепции развития новых городов Сингапура, внедряемая еще с тех пор, как Ли Куан Ю начал бороться с трущобами, нищетой и отсталостью в стране. Согласно плану, реки Сангей Пунггол и Сангей Серангун, окружающие город, перекроют дамбой, чтобы создать пресное водохранилище. Через территорию планировалось проложить искусственный водный путь длиной в 4,2 км, который соединил бы обе артерии. Он также включал строительство 18 000 единиц государственного жилья и частных домов, а также 3 000 новых квартир ежегодно. В долгосрочной перспективе здесь появится 96 000 единиц недвижимости, а весь центр будет застроен объектами смешанного использования. Реализует план Совет по жилищному строительству и развитию Сингапура (HDB). Сейчас в Пунгголе проживают около 187 800 жителей в 49 909 квартирах HDB.
Oasis Terraces
Локация: Панггол, Сингапур
Площадь территории: 27 400 кв. м
Статус объекта: завершен в 2018 г.
Архитектура: Serie Architects
и Multiply Architects
Строительство: Rich Construction Company
Дизайн интерьера: MultiPly Interiors
Ландшафт: WNE Integrated Design
Функции: общественный центр, поликлиника, объекты розничной торговли, учебные центры, пункты общественного питания
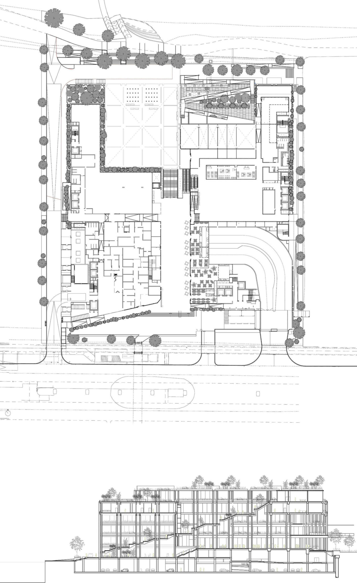
Недавно HDB обнаружил, что в густонаселенных кварталах государственного жилья не хватает общественных центров для их обслуживания. Лондонское бюро Serie Architects и их сингапурские коллеги из Multiply Architects предложили новую модель таких центров, соединив их с поликлиникой и террасированным садом с видом на канал. В прошлом году их проект Oasis Terraces стал победителем Всемирного фестиваля архитектуры (WAF 2019) в номинации «Завершенное здание смешанного использования».
Oasis Terraces расположен на берегу водного пути и включает в себя коммунальные услуги, рестораны и магазины, а также государственную поликлинику. Открытые фасады строения напоминают дизайн окружающих жилых кварталов и призваны придать зданию ощущение легкости и открытости, что подчеркивает его общественное предназначение. «В основе нашего решения — открытые рамы, обычно встречающиеся в фасадах и коридорах многоквартирных домов Совета по жилищному строительству и развитию Сингапура 1970 и 1980 гг., — говорит руководитель Serie Architects Кристофер Ли. — Мы трансформировали эту закономерность в легкую и открытую раму, которая фиксирует и вмещает окруженные ландшафтом разнообразные программы для сообщества. Это архитектурная основа для развертывания общественной жизни».
В самом сердце общественного центра — каскады садовых террас, спускающихся прямо к воде и вмещающих самые разные удобства, включая места для собраний, детские площадки и естественный амфитеатр. Комнаты и открытые площадки, расположенные вокруг садов, используются для пунктов общественного питания, ресторанов, учебных центров и поликлиники.
Некоторые помещения, к примеру, ресторан и залы ожидания клиники, соединяются напрямую с садовыми террасами, поэтому посетители могут сидеть на улице, а гости клиники — любоваться зеленью и водой. А у самой кромки воды находится четырехэтажное свободное пространство с высокими колоннами, служащее закрытой общественной площадью в 800 кв. м. Все маршруты движения через участок пересекают его. К слову, оно отлично подходит для проведения различных общественных мероприятий.
Сады на крыше Oasis Terraces — коллективный садоводческий проект, объединяющий местных жителей
Фасады здания и веранды покрыты растениями, которые создают экологический фильтр между внешним и внутренним пространством, позволяя дневному свету и потокам воздуха проходить сквозь открытую конструкцию здания. Обширный ландшафтный дизайн на крыше центра включает и посадочные клумбы, которые местные жители могут использовать для ведения городского сельского хозяйства, что, по мнению архитекторов, служит дополнительным элементом социализации местного комьюнити. «Сады играют не только эстетическую роль в сообществе; они представляют собой коллективный садоводческий проект. Объединяя жителей в процессе того, как они сажают, ухаживают, наслаждаются ими, сады помогают укреплять общественные связи», — говорит Кристофер Ли.
Наш опыт. Девелопер как социальный агрегатор
В последние годы отечественная архитектура, особенно столичная, стремится следовать передовым тенденциям западной. Поэтому объекты категории смешанного использования активно появляются на нашем рынке недвижимости. В портфелях почти каждого крупного местного архитектурного бюро или девелопера имеются проекты mixed-use. По оценкам аналитиков рынка еще в начале года, то есть до пандемии, спрос на такой формат составлял 70 % от общего, а после завершения весеннего карантина доля продаж данного типа объектов варьируется в пределах 80—85 % и будет ожидаемо расти. Объясняется это тем, что смешанное использование здания позволяет застройщику, говоря экономическим языком, получить отличную рентабельность и диверсифицировать риски, поскольку финансовые поступления идут из разных потоков: жилую часть недвижимости, например, могут спонсировать частные инвесторы — покупатели жилья, и даже еще до закладки фундамента, за счет чего девелопер имеет возможность развивать коммерческую составляющую. В условия дефицита и дороговизны главного ценного ресурса — земли, особенно в центре города, и при несовершенстве нашего законодательства в отношении земельной и кадастровой политики соединение нескольких функций позволяет застройщику эффективно распределять и экономить эти самые ресурсы, несмотря на то что процесс создания mixed-use объекта довольно трудоемкий и требует солидных капиталовложений и серьезной тщательно продуманной проектной документации.
CITY HUB
Локация: Киев, Украина
Заказчик: строительная компания «Интергал-Буд»
Начало строительства: IV квартал 2019 г.
Функции: квартиры, объекты сферы услуг, супермаркет, паркинг, детский сад, спортивные и детские площадки со скалодромом, зеленые зоны отдыха, консьерж-сервис
Транспортное сообщение (автомобиль):
-
ст. м. «Вокзальная» — 10 мин.
-
ст. м. «Университет» — 17 мин.
-
Аэропорт «Киев» — 10 мин.
-
Аэропорт «Борисполь» — 35 мин.
-
Вокзал «Южный» — 4 мин.
-
Вокзал «Центральный» — 10 мин.
-
Исторические и культурные места в пешей доступности
-
Зеленые зоны и парки вокруг комплекса
Другим фактором, сделавшим совмещение функций популярным у нас, стала необходимость развивать бывшие промзоны после перенесения производств за черту города. В Киеве таких зон насчитывают от 100 до 140, и крупные mixed-use-центры нужны там как воздух, поскольку несут в себе минимально необходимую инфраструктуру. У нас наибольшее распространение такой подход получил в современных высотных ЖК — целый город в пределах одного жилого комплекса с собственной инфраструктурой, покрывающей фактически все функции: от деловой и развлекательной до образовательной и торговой. К слову, строительная отрасль одна из немногих, где удалось относительно ровно выйти из карантинных перипетий. Пусть и в условиях ограничений, но стройки, по крайней мере, в Киеве, практически не останавливались.
В столице один из свежих примеров мультифункционального жилого комплекса — ЖК CITY HUB, который сейчас реализует строительная компания «Интергал-Буд» по Кудряшова, 10, что в десяти минутах ходьбы от Южного ж / д вокзала. Когда‑то это место было частью Мокрой улицы, по названию одноименной речки, протекавшей по дну Кучмина яра рядом. Она давно уже спрятана в коллектор под улицей, но территория сохранила свою зеленую часть. Именно тщательный анализ потенциала локации позволил застройщику определить, что наиболее инвестиционно привлекательным объектом в этом месте будет новый жилой комплекс смешанного типа использования. Стильное современное здание в духе минимализма, выделяющееся на фоне типовой советской застройки 1970 гг. своими правильными геометрическими формами и интересными акцентами, станет фокальной точкой для жителей Соломенского района.
Стильное современное здание на фоне типовой застройки 1970 гг. станет фокальной точкой района
ЖК CITY HUB занимает участок почти в полтора гектара и включает два дома высотой 19 и 20 этажей соответственно. Его строительство началось в конце прошлого года, и в настоящий момент полностью выведены семь этажей первого здания. Около 80 % комплекса занимает жилая часть, а остальное — коммерческая недвижимость различного назначения, включая супермаркет, рестораны, фитнес-центр и другие объекты. Главной особенностью является стилобат, объединяющий оба строения. Сверху на его горизонтальной плоскости разместят зеленые зоны для отдыха, детские и спортивные площадки со скалодромом, а также всю необходимую инфраструктуру, что позволит максимально эффективно использовать имеющуюся площадь. А внутри него скроют автопаркинг на 330 мест с предусмотренными точками подзарядки для электрокаров, то есть изначально исключен момент, когда автомобили жильцов ЖК мешают друг другу или жителям соседних домов, загромождая дворы.

ЖК CITY HUB
Площадь земельного участка: 1,4891 га
Количество домов: 2
Этажность: 19—20
Количество квартир: 471
Дом 1: 255 квартир
Дом 2: 216 квартир
Количество паркомест: 330
Рядом с CITY HUB — супермаркеты, офисы, зеленые парки и зоны отдыха, спортплощадки и фитнес-центры, всевозможные развлекательные заведения, включая популярный «Ультрамарин» с кинотеатром сети «Баттерфляй», не говоря уже о близости метро и главного железнодорожного вокзала. К тому же Соломенский район, в котором строят комплекс, считается одним из самых благоустроенных в городе. Он постоянно развивается и обогащается рекреационными зонами, а его учебные заведения входят в список лучших в столице. Иными словами, покупка жилья здесь — перспективное капиталовложение. Однако прибыль — далеко не все, чего ожидает застройщик. Компания «Интергал-Буд» рассматривает CITY HUB как ключевое звено в формировании новых социокультурных связей между жителями района, тесного местного комьюнити, чего остро не хватает в нынешний карантинно-пандемический период. И потому слово hub (в пер. с англ. — «концентратор», «узел») в его названии не случайно.

Варианты планировок квартир в ЖК CITY HUB, визуализация. Изображение предоставлено компанией «Интергал-Буд»
Монолитно-каркасная технология строительства, экологически чистые материалы, отвечающие всем европейским стандартам, навесные вентилируемые фасады из керамогранита, утепленные безопасным негорючим материалом — минераловатной плитой из базальтового камня, двухкамерные стеклопакеты с аргоном внутри и специальным напылением, предотвращающим нагревание стекла (почти вполовину теплее стандартного стеклопакета), — все это направлено на то, чтобы сделать проект энергоэффективным. Применение комплексных энергосберегающих технологий в данном проекте позволит экономить жильцам 50—60 % тепла и порядка 30—35 % расходов на коммунальные услуги. Да, это увеличивает стоимость квадратного метра примерно на 15 % по сравнению с типичными жилыми домами, и такая экономия может показаться на первый взгляд несущественной, но в долгосрочной перспективе выглядит очень привлекательно (окупаемость по оценкам экспертов — восемь сезонов). В то же время приятно осознавать, что дом, в котором живешь, оказывает минимальное влияние на окружающую среду и задействован в устойчивом развитии горда. К слову, собственная котельная комплекса исключает всякую нагрузку на городские теплосети и позволяет автономно отапливать здания.
Внешние и внутренние стены CITY HUB выполнены из полнотелого керамического кирпича, а перегородки из керамического блока. На фасадах добавлены интересные акценты с помощью текстуры под кортеновскую сталь, полированный мрамор с прожилками, матовый бетон графитового цвета, просечно-вытяжную сетку или перфорированный лист металла. Особое внимание уделено шумоизоляции как самих жилых площадей, так и общих зон. Застройщик свел к минимуму любое шумовое загрязнение — ни тебе шумных соседей, ни громких лифтов. Завершить строительство и сдать в эксплуатацию оба дома планируют во втором квартале 2022 г.
Хорошо. Предположим, застройщик получит свою прибыль, а что получат в ответ горожане? За ответом на данный вопрос мы обратились к коммерческому директору компании «Интергал-Буд» Анне Лаевской.
PRAGMATIKA.MEDIA: На ваш взгляд, какую именно пользу принесет строительство CITY HUB городу и его жителям? Как его появление повлияет на развитие района? Социально? Экономически?
Анна Лаевская: CITY HUB — это жилой комплекс бизнес-класса с современной архитектурой, разноплановой квартирографией и многофункциональной инфраструктурой, который станет новой доминантой Соломенского района. Благодаря продуманной концепции и грамотному зонированию пространства в комплексе гармонично сочетаются приватная территория резидентов со множеством функций (закрытый от авто и посторонних двор, спортивная площадка с тренажерами под открытым небом, досуговые зоны и детские игровые городки) и коммерческая составляющая, представленная торговыми помещениями разного функционального назначения для развития инфраструктуры комплекса и района.
Архитекторы и проектировщики тщательно поработали над площадями, планировочными решениями, конструктивными особенностями помещений, чтобы у арендаторов и собственников не возникло никаких сложностей: высокие потолки, хорошие видовые и рекламные возможности — панорамные окна, большие витринные группы и выход на трафиковую пешеходную артерию.
Пользоваться услугами торговых и сервисных объектов смогут не только жители комплекса, но и микрорайона. Мы как застройщики всегда тщательно подходим к выбору арендаторов и собственников, чтобы создать максимально комфортную экосистему для будущих жителей. Это позволит качественно улучшить социально-бытовую инфраструктуру в ареале застройки.
«Не устаю повторять, что одна из ключевых характеристик современного девелопмента — это социальная устойчивость», — Анна Лаевская
Я помимо прочего не устаю повторять, что одна из ключевых характеристик современного девелопмента — это социальная устойчивость. Невозможно строить на участке, абстрагировавшись от нужд, потребностей, особенностей микрорайона. Когда мы изучали локацию рядом с CITY HUB, стало понятно, что дождевой коллектор по ул. Кудряшова в плачевном состоянии и требует реконструкции. Мы разработали, согласовали проект и активно взялись за работу. Есть множество вопросов, связанных с инженерными коммуникациями, состоянием дорог, уличного освещения, которые город не может или не хочет решать собственными силами. Однако мы не строим обособленно: нельзя создать комфортную среду для жизни и тепличную экосистему, из которой человек, покидая территорию комплекса, попадает в трущобы. Именно поэтому развитие инженерной инфраструктуры, инвестиции в реконструкцию и создание скверов и парков, благоустройство водоемов — это один из первоочередных вопросов для компании «Интергал-Буд» на повестке дня. За последние пять лет сумма наших безвозвратных инвестиций в развитие Киева составила свыше 370 млн грн.

Комплекс призван принести новизну в урбанистичный ландшафт Соломенского района и стать социокультурным центром местного комьюнити
Еще один значимый, но, возможно, не для всех очевидный момент пользы от строительства нового комплекса связан с архитектурным проектом CITY HUB. Комплекс спроектирован таким образом, чтобы принести новизну в урбанистический ландшафт Соломенского района. Мы выбрали четкие линии фасадов, большой процент остекления, правильные геометрические формы, выразительные, но не вычурные цвета. Наша цель — создать гармоничное пространство для жизни, где каждая мелочь соответствует уровню и стилю жизни современного человека в большом городе. Своими проектами мы задаем тренд в жилом строительстве, и CITY HUB не исключение. Мы показываем, каким может быть современное жилье в Киеве: в первую очередь функциональным, продуманным до деталей и, конечно же, человекоцентричным.





