Про тотальну конверсію військових об’єктів у музеї, готелі, ресторани чи просто пам’ятники мріяла, мабуть, будь-яка творча людина, вражена своєрідною архітектурою фортів, бункерів і ракетних шахт. Деякі із цих мрійників, не чекаючи радикального поліпшення військово-політичної ситуації на міжнародному рівні, займаються втіленням ідей у реальність.
Бомбосховище-музей
Сімейна пара колекціонерів сучасного мистецтва Карен і Крістіан Бороси на початку двохтисячних шукали в Берліні приміщення під галерею. Більш ніж 500 полотен, що їм належали, просто не вміщалися в жодному з приватних будинків.
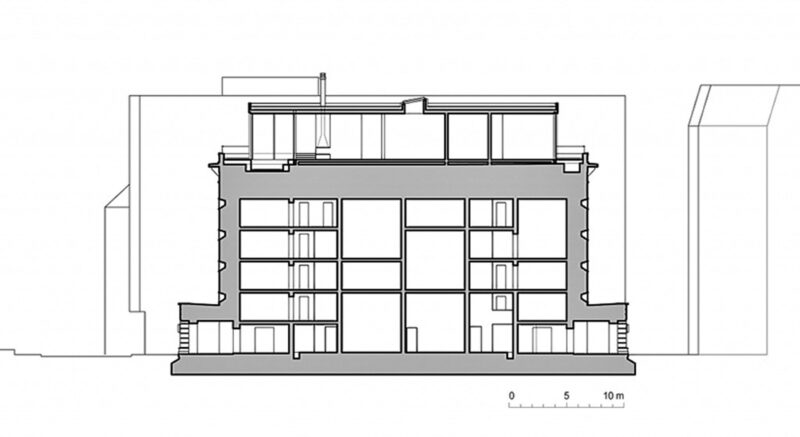
Залізобетонний куб на Рейнхардтштрассе в центрі Берліна привернув увагу Боросів. Це був бункер, у 1942 році побудований архітектором Карлом Бонацем під керівництвом Альберта Шпеєра, ідеолога архітектури Третього Рейху.
Будівлю 18 метрів заввишки, позбавлену вікон, зі стінами завтовшки 1,8 метра й дахом із триметрового шару бетону Бонац прикрасив ренесансними карнизами. Він, як і Шпеєр, був переконаний, що бункер, незважаючи на свою утилітарну функцію, стане частиною нового міського плану, і бачив його будинком без домішок «виродженого» модернізму, будинком у чистому стилі, таким собі «арійцем в архітектурі».
Але після поразки Німеччини бункер використовували як склад текстилю, а потім — як сховище тропічних фруктів, що їх привозили з Куби, — у ці роки брутальну споруду із часткою зневаги називали «банановим бункером». Коли Крістіан Борос вирішив перетворити сховище на художню галерею, там уже працював бордель і дискоклуб.

Бункер був побудований в 1942 році архітектором Карлом Бонацем під керівництвом Альберта Шпеєра, ідеолога архітектури Третього Рейху.
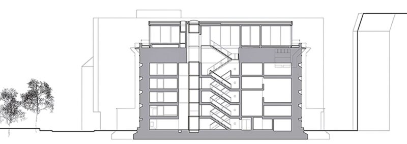
Бункер був реконструйований за проєктом архітектора Йєнса Каспера з бюро Realarchitektur. Було видалено частину внутрішніх перегородок, а на даху був побудований пентхаус у вигляді куба із загартованого скла із садом і басейном.
Шахту ліфта до житлових апартаментів з інтер’єрами з бетону, обпаленого дуба та вапняку довелося прорізати крізь товщу бетону, і це була найважча операція, на яку пішло шість місяців. Пізніше архітектурний проєкт реновації бункера удостоївся безлічі нагород.

Крістіан і Карен Борос у своєму пентхаусі на даху бункера.
Ось як вони описують свої враження в інтерв’ю, опублікованому на платформі Freunde von Freunden:
Крістіан Борос: «Я до сих пір почуваюся, начебто досі не переїхав. Я дивлюся на цей будинок і не можу повірити, що я там живу. Структура така масивна, громіздка й важко засвоюється».
Карен Борос: «Неможливо забути минуле, коли людина живе в такій жахливій споруді, яка дихає своєю неминучою серйозністю». Фото: Ailine Liefeld
Приватна галерея Боросів здобула міжнародну популярність як через те, що тут регулярно проводять виставки за участю зірок актуального мистецтва, так і завдяки самому об’єкту, історія якого досі хвилює уяву.
Бункер-готель у ракетній шахті
Тим часом візіонери з Vivos уже розпродали апартаменти в підземному готелі-бункері в Індіані, обладнаному в колишніх ракетних шахтах. 80 людей, які заплатили по $35 тисяч, отримали право в час «Ч» спуститися під землю, щоб прожити там мінімум рік. На сайті Vivos сховище презентують як 4-зірковий готель з усіма зручностями.

Кожній сім’ї пропонуються апартаменти площею 232 квадратних метри, які можна обставити на свій смак. Джерело зображення: VIVOS
Оцінивши комерційний ефект справи, компанія не має наміру зупинятися: Vivos обіцяє обладнати цілу мережу бункерів і врятувати від апокаліптичного катаклізму як мінімум 1 відсоток населення земної кулі. Є навіть мапа з локаціями, але без точних координат.
Найближче до України укриття Vivos Europa One знаходиться «в скелястій місцевості на території приватних володінь» десь на кордоні Франції та Німеччини. Кожній сім’ї пропонуються дворівневі апартаменти площею 232 квадратних метри, які можна обставити на власний смак. Є в підземеллі й громадські простори: спортзали, ресторани та бари. П’ятизіркове укриття розраховане всього на 35 сімей плюс обслуговуючий персонал.
Я відкрив одну важливу річ… — прошепотів Тісту. — Квіти приборкують зло.
Моріс Дрюон, книга «Тісту-чудотворець»
Міни як частина інтер’єру
Маті Кармін, один із найвідоміших скульпторів сучасної Естонії, у перервах між заняттями монументалістикою та лекціями в університеті перетворює іржаві глибоководні міни на дизайнерські меблі: офісні та лаунж-крісла, столи, ліжка, дитячі візочки й абстрактні скульптури.
Міни типу AGSB, розраховані на знищення кораблів і підводних човнів, випускалися в Радянському Союзі з 1942 року. Під час виведення військ СРСР з Естонії солдати гарнізону на острові Найссаар у Фінській затоці в метушні не повністю знищили арсенал. Велика кількість мін, як цілком боєздатних, так і знешкоджених, залишилася на територіях покинутих військових містечок.
Художника, який відомий тим, що будує свою творчість на суперечностях і контрапунктах, вразила досконала форма оболонки глибоководної міни в поєднанні з її деструктивною суттю. У рамках проєкту, крім меблів, він створив на базі радянського ракетоносця ЗІЛ-157 мобільну скульптуру-фонтан у формі фалоса з чотирма годинниками, циферблати яких показують час у Москві, Лондоні, Парижі та Нью-Йорку. Такий собі реванш пацифіста.

Крісло «Ретро» із двох половинок глибоководної міни з подушкою та підголовником із брезента. Джерело фото: marinemine.com

Гідравлічна «ракета» на базі радянського ЗІЛ-157. Використовується як пересувний фонтан. Джерело фото: marinemine.com
Меблі з мін Маті Карміна тепер прикрашають музейні галереї та приватні маєтки. «Клієнти, які спочатку замовляють камін, потім бажають замовити стіл і кілька стільців, а потім — і меблі для саду. Багато хто з них утомився від стандартних комерційних предметів і хоче чогось глибоко своєрідного й особистого», — каже Маті.
Секретний Тірпіц
Влітку 2017 року архітектурне бюро Б’ярке Інгельса BIG завершило роботу над новим музеєм Другої світової війни у Блаванді на заході Данії. Присадкуватий ортогональний бункер із бетону увінчали білим ажурним куполом, під яким ховається атріум. Таке контрастне поєднання — це розповідь мовою архітектури про нещадну машину війни і світлу пам’ять, яку залишили по собі борці датського Опору.
Основний галерейний простір знаходиться поруч із бункером, але він прихований під шаром піску та ґрунту, засіяного травою. Прохід у галереї можливий чотирма вузькими каналами, у перетині яких сформований відкритий внутрішній двір.
Сам бункер Тірпіц — частина незакінченого плану мережі оборонних споруд «Атлантична стіна». Наразі він став ключовим фрагментом музейної експозиції, архітектурним свідком глобальних амбіцій нацистів. Керівництво музею та місцева влада розраховує, що Тірпіц прийматиме на рік не менше 100 тисяч відвідувачів, і це пожвавить усю економіку району.

«У якомусь сенсі музей був задуманий як антитеза бункеру. Дот — це конкретний, герметичний об’єкт, який різко контрастує з навколишньою місцевістю. А музей — відкритий, гостинний простір серед дюн», — каже архітектор Б’ярке Інгельс. Фото: Laurian Ghinitoiu
Ми перетворимо завод гармат… на завод квітів!
Моріс Дрюон, книга «Тісту-чудотворець»
Музейний острів Хомбройх
Під час холодної війни ракетна станція Hombroich була секретним, не позначеним на картах об’єктом, частиною пояса НАТО та місцем дислокації бельгійської ракетної ескадрильї. Але в 1994 році колекціонер Карл-Генріх Мюллер викупив базу ППО і втілив у життя свою давню мрію про заповідник для творчості, затишне місце поза часом, модними тенденціями й турботами повсякденності. Хоча географічно Хомбройх не є островом, концептуально це — відокремлена територія, острів культурних скарбів.
На 11 гектарах Мюллер створив художній музей, польовий музей друку, парк скульптур і науковий мультдисциплінарний центр, який займається культурологічними дослідженнями й експериментами.
Ангари, земляні вали, оглядові вежі були відремонтовані та реконструйовані. Частина нових будівель — лаконічні цегляні скульптури данського архітектора Пера Кіркебі. Він, як і Раймунд Абрахам, Тадао Андо, Ервін Геріх, Рудольф Фінстервальдер, Кацухіто Нішікава й Алвару Сіза є частими гостями на Хомбройху.
Виставкові павільйони збудовані за проєктами скульптора Ервіна Геріха. Будівлі та монументальні скульптури в полях Хомбройха, як і експонати художньої галереї, позбавлені табличок з іменами художників. Анонімність мистецтва — також одна зі складових частин гедоністичної концепції Мюллера. Людина повинна просто прогулюватися й сприймати об’єкти як частину навколишнього ландшафту. Лейтмотивом Хомбройха став девіз, обраний Мюллером: «Мистецтво паралельне природі».
Антимілітаристська ідея острова-музею Хомбройх прочитується на кожному кроці, у кожному камені, пагорбі, зарослому травою доті, сторожовій вежі. Там, де гриміла зброя, тепер говорять поети.
Парк кактусів на місці військової бази
Культурне прагнення до конверсії військових об’єктів у художні — тенденція не тільки країн Європи й Америки, вона світова. Ось іще один приклад: територія військової бази на архіпелазі Пенху в Тайвані сьогодні перетворена на заповідник із ландшафтним парком, фруктовими плантаціями й оранжереями, де культивують рідкісні кактуси та сукуленти.
Частина вцілілих будівель форту переобладнана в тимчасове житло й використовується в якості «села художників», для тих, хто хоче відпочити, помилуватися базальтовими скелями та видами Південнокитайського моря. Для залучення туристів тут регулярно проводяться культурні заходи та виставки. Уряд округу Пенху вважає завданням-максимум відновити природне середовище та повернути його до «домілітаристичного» екологічного стану.

Територія військової бази на архіпелазі Пенху Фуджуей у Тайвані сьогодні перетворена на заповідник із ландшафтним парком, фруктовими плантаціями й оранжереями, де культивують рідкісні кактуси та сукуленти. Джерело зображення: CCL Architects & Planners
Завод працював на повну потужність. Дев’ять труб були увиті зверху донизу соковитою зеленню та яскравими квітами. Цехи пахли рідкісними запахами.
Моріс Дрюон, книга «Тісту-чудотворець»

Територія військової бази на архіпелазі Пенху Фуджуей у Тайвані сьогодні перетворена на заповідник. Фото: Lin Fu Ming
Проєкція на Київ:
Віктор Гріза про недоконверсію Київської фортеці
Якщо говорити про військову конверсію, то як надихаючий приклад можна навести «Мистецький Арсенал», який збирає черги на кожен культурний захід. Локомотивом трансформації великої будівлі із жовтої київської цегли в культурний майданчик європейського рівня стала Наталія Заболотна, яка за роки керівництва Арсеналом реалізувала в його стінах десятки масштабних виставок і проривних, за українськими мірками, заходів.
Але всі кроки щодо створення флагманської культурної інституції України були б неможливими без кураторства Банкової. Роботі музейників і галеристів щодо конверсії Арсеналу передували кілька указів Президента В.А. Ющенка та постанова Кабміну про передачу об’єкта з ведення Мінкульту в підпорядкування АП.

Віктор Гріза, кандидат історичних наук, заслужений працівник культури, керівник проєкту створення Будинку-музею Ігоря Сікорського, артоглядач
Розвиток креативної економіки в Україні на базі об’єктів державної та комунальної власності неможливий без втручання чиновників найвищого рівня — так вважає, виходячи зі свого особистого досвіду, Віктор Гріза, артпродюсер і художник. Через бойові дії на Донбасі масштабні культурні проєкти, які він курував у Донецьку, обнулилися.
У столиці Віктор, вивчивши культурне середовище міста, запропонував концепцію розвитку музею «Київська фортеця», обіцяючи перетворити його на платформу для колаборацій креативних індустрій світового рівня. Концепція залишилася на папері, зате про наявні камені спотикання Віктор тепер знає не з чуток.
Національний історико-архітектурний музей «Київська фортеця» — грандіозний комплекс будівель і споруд, які вже давно є не мілітарними, а чисто архітектурними об’єктами з величезною територією так званого «Лисогірського форту» в районі Видубичів. Башти та капоніри в центрі Києва є привабливими з комерційного погляду, тому багато з них були приватизовані ще в перші роки незалежності.
Частина капонірів залишилася непотрібною й перебуває в напівзруйнованому стані. На території, що прилягає до військового шпиталю Міноборони України, розташовано кілька об’єктів, цікавих із погляду ревіталізації, які мають статус історико-архітектурної пам’ятки та формально належать до муніципальної власності.
У Косому капонірі знаходиться меморіальна експозиція казематів, де після повстання 1863 року утримувалися польські активісти, на площі перед південною вежею Госпітального укріплення проводяться виставки сучасного мистецтва, проте Віктор Гріза вважає, що креативний потенціал музею використаний менш ніж на чверть.
Віктор Гріза: «Наскільки ці експозиції привабливі — питання досить спірне, бо сама меморіальна функція є досить сумною, а програми, які могли б згенерувати грошовий потік і залучити туди відвідувача (інтерактивні та рольові ігри, військово-історичні реконструкції), відсутні.
Наприклад, не можна залишитися на ніч у тюремній камері, не можна поїсти баланди, тебе не виженуть на прибирання двору в робі, можна тільки зайти та схилити голову. З погляду інтертейменту це річ невдячна».
Інерція недотворчості, недорозвинення досі є стримуючим фактором і перешкодою тому, щоб музейна сфера стала самодостатньою у фінансовому плані
Як пояснив Віктор Гріза, розвиток музею насамперед обмежується статусом історико-архітектурної пам’ятки, що не допускає будь-яких архітектурних втручань, а також тим фактом, що більша частина території досі не розмежована між музеєм і військовим шпиталем.
Міністерство оборони не бажає поступитися жодною п’яддю землі, а музей, не маючи жодних господарських прав, обтяжений масою зобов’язань, зокрема з прибирання й охорони території. Тулячись, по суті, у кількох приміщеннях правого крила військової поліклініки.
Віктор Гріза: «Потенціал у Київської фортеці величезний, але немає законодавчих умов для розвитку цього потенціалу. Музейна сфера в нашій країні від самого початку була налаштована на збереження чи приховування, а ось на розвиток, на розваги, на те, щоб це справді стало частиною культури, частиною способу життя, — такої установки не існує й досі. Ця інерція недотворчості, недорозвинення досі є стримуючим фактором і перешкодою до того, щоб музейна сфера стала самодостатньою у фінансовому плані».
Рандомні спроби ентузіастів ревіталізувати Київську фортецю існують. Театр «Маскам Рад» ось уже кілька років проводить у фортеці спектаклі, в яких беруть участь як любителі, так і професійні актори, організовує фестивалі дитячих театрів та історичних документальних фільмів, які, за словами Грізи, відвідує «зневажливо мала кількість глядачів». Хоча коли виставу «Той самий Мюнхгаузен» грають на тлі старовинних стін — це надихає.
Віктор Гріза: «У якийсь момент мене це захопило і здалося цікавим: утілити деякі ідеї у форматі ревіталізованого Першого капоніра в кінці Лабораторного провулка. Ми зайнялися прибиранням території навколо капоніра, були готові розпочати ремонт внутрішніх просторів. Там не було ні дверей, ні вікон, нічого, але його приваблива архітектура та вигідне місце розташування налаштовували нас на оптимізм.
Концепція була складена, подана директору музею й отримала схвалення, яке, втім, з юридичного погляду було нікчемним: директор, як і безпосереднє керівництво в Департаменті культури КМДА, позбавлені можливості впливати на законодавство».
Концепція ревіталізації, складена Віктором Грізою та його однодумцями, передбачала відхід від мілітарного підтексту. Необхідно було змінити меморіальну функцію на розважальну та культурологічну, розробити креативну міфологію. Квартира барона Мюнхгаузена, полігон бравого солдата Швейка, зброярня Святослава, притулок Казанови, січове посольство Тараса Бульби, кабінет Боплана, таємний підвал декабристів — ідей було чимало, і кожна була вражаючою.
Керуючи гарматним заводом, ви цим загартовуєте свою душу.
Моріс Дрюон, книга «Тісту-чудотворець»
Віктор Гріза: «Однак запровадження конкурсів на заміщення позицій директорів об’єктів культури (Закон «Про внесення змін до деяких законодавчих актів України щодо запровадження контрактної форми роботи у сфері культури та конкурсної процедури призначення керівників державних та комунальних закладів культури», — прим. ред.) загальмувало весь процес.
Процедуру самих конкурсів бюрократизовано, політизовано. І чим далі, тим більше ми розуміли, що Київська фортеця є надто ласим об’єктом для багатьох зацікавлених сторін. І ці сторони розглядають її не як потенціал для креативної економіки, а в більш прозаїчному ключі — як територію розвитку свого будівельного бізнесу. Тому, зрозумівши, що в рамках чинного законодавства без ризиків втратити результати праці втілити свою ідею неможливо, ми вирішили залишитися осторонь цього процесу».
Наскільки взагалі тема військової конверсії доречна в країні, яка воює, у державі, що зазнала агресії? Зараз би говорити про необхідність нарощування потенціалу, тренування м’язів, будівництво нових заводів і ракетних шахт, а не пропонувати переробляти військові заводи під музеї, — скаже хтось.
Ми не настільки наївні, щоб стверджувати, ніби мистецтво здатне зупинити війни, а перетворення бункерів на музеї — залікувати воєнні рани. У динаміці військової конверсії ми бачимо потужний вітальний посил, червоний рядок в архітектурному палімпсесті. Прагнення творчих людей до перетворення об’єктів, створених заради вбивства, на художні музеї, галереї, скульптури — це споконвічний і гуманістичний процес протиставлення народження смерті, творення — руйнації.

























