Лінійна архітектура
Сучасні успішні архітектурні проєкти є глибоко логічними. Уточнимо, що під успішністю ми маємо на увазі не лише нагороди великих міжнародних конкурсів та інтерес до нового об’єкта з боку містян і туристів, а й рентабельність, коли всі зусилля, ноу-хау та фінансові витрати виправдовуються, а дизайн мультиплікує додану вартість. На відміну від постмодернізму з його еклектикою, іронічністю та цитуванням, архітектура XXI століття здається повністю підпорядкованою складним математичним формулам: параметрам енергоефективності, сталості, ергономічності. Маятник знову хитнувся в бік модернізму, але на новому рівні розвиток технологій подарував архітекторам небачену раніше свободу маневру, а емоційність соціуму та прагнення людей до свіжих вражень змушує проєктувальників приділяти формі пріоритетну увагу.
Суворий ритм віконних отворів, вертикальні та горизонтальні ламелі, сонцерізи, тонкі, але виразні імпости є чіткими маркерами лінеарної архітектури XXI століття. Лінеарні фасади привабливі не тільки чистою геометрією, а й своїми практичними якостями: можливістю точно розрахувати та контролювати пропорції світла й тіні для внутрішніх просторів і можливістю організувати природну вентиляцію в будинках, що працює на енергоефективність та внутрішній комфорт.
Визначення «лінеарні фасади» звучить досить нудно, але навіть досвідчені архітектори, що працюють в актуальному стилі, ще не ризикують давати йому назву. Вживати для характеристики сучасних комерційних будівель слово «типовий» ми теж не ризикнули б. Підхід Build-to-Suit (будівництво за індивідуальними вимогами, коли будівлю проєктують відповідно до потреб замовника й орендарів, з урахуванням перспектив майбутнього зростання) тепер реалізується не тільки у створенні знакових будівель і корпоративних штаб-квартир, але практично всіх громадських будівель.
Якщо детально розглянути проєкти Stadtquartier Neuer Kanzlerplatz у Бонні, Weitblick Innovation Campus в Аугсбурзі та Gantry Hotel у Лондоні, то можна виявити щось спільне, що їх поєднує: використання огороджувальних систем Schüco. І це привід розповісти про панорамне скління як невід’ємний елемент сучасної міської архітектури, а також про специфіку скління складних комбінованих фасадів. Але спочатку — про самі архітектурні об’єкти.
Якщо детально розглянути проєкти Stadtquartier Neuer Kanzlerplatz у Бонні, Weitblick Innovation Campus в Аугсбурзі та Gantry Hotel у Лондоні, то можна виявити щось спільне, що їх поєднує: використання огороджувальних систем Schüco. І це привід розповісти про панорамне скління як невід’ємний елемент сучасної міської архітектури, а також про специфіку скління складних комбінованих фасадів. Але спочатку — про самі архітектурні об’єкти.
Невагома вежа Neuer Kanzlerplatz
«Наша робота поєднує концептуальну ясність зі стриманим використанням формальних засобів. Ця “економія коштів” як у великих масштабах, так і в архітектурних деталях є важливою передумовою довговічності наших ідей», — підхід архітекторів JSWD до проєктування можна назвати «чисто німецьким».
Засновники JSWD Architekten Юрген Стеффенс, Олаф Дресен і брати Костянтин та Фредерік Ясперт пропагують Baukultur — «баукультуру». Цей термін відсилає нас до модерністської школи Баухауз, яка залишається фундаментом сучасної європейської архітектури.

Фасадні конструкції зі склофібробетону надають Stadtquartier Neuer Kanzlerplatz індивідуальний характер. Фото: Christa Lachenmaier. Зображення надане Schüco Ukrainе
Саме JSWD, здобувши перемогу в конкурсі, розробили для Bundeskanzlerplatz у Бонні проєкт знакового архітектурного ансамблю з трьох офісних будівель із вежею висотою 101,5 м. Раніше на цій ділянці, розташованій у пішохідній близькості від Музейної милі, була безлика адміністративна забудова 60-х років. Після завершення будівництва у 2022 році площа стала креативним центром району, що динамічно розвивається. Завдяки тривимірній геометрії фасадних конструкцій зі світлого склофібробетону зовнішній вигляд будівель змінюється залежно від точки спостереження та перспективи. Встановлений у центрі площі дзеркальний скульптурний павільйон від данського художника Єппе Хайна посилює цей ефект багатовимірного складного простору.

Архітектурний ансамбль на оновленій Bundeskanzlerplatz, Бонн, Німеччина. Фото: Christa Lachenmaier. Зображення надане Schüco Ukrainе
Окрім незвичайного фасаду, башта Stadtquartier Neuer Kanzlerplatz має ще одну видатну конструктивну деталь — фоє з панорамним склінням висотою близько 11 метрів, стеля в якому спирається на чотири мегаопори з ромбоподібним рельєфом. Цей прийом кардинально змінює звичну статику та візуально піднімає вежу над поверхнею землі.

Вхідна група у башту Stadtquartier Neuer Kanzlerplatz: фоє з панорамним склінням. Джерело зображення:JSWD Architekten
У склінні верхніх поверхів вежі використовувалися віконні блоки із вбудованою вентстулкою. Як основу індивідуального рішення обрано систему AWS 75.SI від Schüco та рафштори в комбінації зі складними виносними кронштейнами, на яких кріпляться декоративні склофібробетонні елементи, що надають фасаду унікального зовнішнього вигляду.
Weitblick Innovation Campus: естетика сталого розвитку
Засновник студії Sehw, професор Університету Бохума Ксавер Еггер викладає в Німецькому технологічному університеті Омана урбанекономіку для студентів факультету планування та архітектури, а також консультує Федеральне міністерство освіти та досліджень у питаннях сталого міського розвитку. Зрозуміло, що всі проєкти, які виходять із Sehw, орієнтовані насамперед на відповідність концепціям енергоефективності та сталості. «За часів швидкої зміни клімату ми прагнемо до ресурсозберігаючих методів будівництва та використання відновлюваних джерел енергії. Будівельні матеріали та циркулярна економіка є основою тривалого життєвого циклу та отримання відповідних сертифікатів сталості для наших будівель», — каже Ксавер Еггер.

Системи сонцезахисту на фасаді Weitblick Innovation Campus в Аугсбурзі. Фото: Raissa Axmann Fotografie, Lahr. Зображення надане Schüco Ukrainе
Офісний блок Weitblick Innovation Campus в Аугсбурзі, який є першою чергою інноваційного науково-промислового парку, що розвивається, можна вважати якісним зразком стійкості. Архітектурна концепція орієнтована на стартапи й компанії з дослідницького та технологічного секторів: відкрите планування внутрішніх просторів і лаконічний, але незабутній дизайн фасадів. Будівля, що відповідає концепції zero-carbon building, була здана в експлуатацію у 2021 році і вже отримала сертифікат LEED Platinum.

Індивідуальне рішення на основі стійково-ригельної фасадної системи FWS 50.SI від Schüco. Зображення надане Schüco Ukrainе
Якщо дизайн вежі Stadtquartier Neuer Kanzlerplatz можна називати спрямованим у небо, то вигляд інноваційного центру, розташованого в оточенні сільськогосподарських полів, нагадує нам про стиль прерій Френка Ллойда Райта. Зовнішні горизонтальні ламелі встановлені на виносних кронштейнах стійково-ригельної фасадної системи FWS 50.SI від Schüco. Великоформатні сонцерізи захищають внутрішні простори від перегріву та відблисків, забезпечуючи комфортне робоче середовище.
Gantry Hotel: скляна скринька за яскравим фасадом
Gantry Hotel у Лондоні — це багатофункціональна будівля, яка поряд із безліччю громадських просторів містить також дизайнерський готель Curio Collection by Hilton. Архітектуру для нового лендмарку в колекції Hilton розробляли в британському бюро Ica, яке спеціалізується на проєктуванні об’єктів сфери гостинності по всьому світу.

Gantry Hotel Curio Collection by Hilton отримав фасад з вертикальними ребрами, що нагадують залізничні колії. Фото: ICA Studio. Зображення надане Schüco Ukrainе
Кредо бюро Ica звучить так: «Справжня винахідливість — це творчість, застосована з користю». Сама територія Олімпійського парку у Стратфорді — не місце для банальної чи традиційної архітектури. Замовники вимагали знайти виразне, але практичне рішення: щоб готель був простим у будівництві та недорогим в експлуатації. Дизайнери вигадали образ, який перегукується з колишнім Стратфордом, що в минулому був центром локомотивного будівництва Великої Британії. Будівля отримала фасад із тонкими вертикальними ребрами, що нагадують залізничні колії, і гнутими горизонталями. Під «плавцями» навісного фасаду видно панорамне скління «в підлогу».

Індивідуальне рішення на основі системи елементних фасадів USC 65 від Schüco. Зображення надане Schüco Ukrainе
«За яскравим зовнішнім іміджем прихований практичний секрет: усередині знаходиться проста й недорога скляна скринька — рішення, яке дозволило підрядникам точно розрахувати вартість будівництва, — так пояснили в Ica свою ідею. — Основна конструкція Gantry є незалежною від її ребер. Це дозволило розрахувати кожен елемент окремо, мінімізувавши ризики та скоротивши витрати».
Скління, а також панорамне огородження на «хмарних» барах-терасах були реалізовані завдяки використанню систем Schüco. Як пояснює Олексій Сверчков, комерційний директор Schüco Ukrainе, в цьому випадку використовувалася система елементних фасадів USC 65. Її особливість — складання в цеху фасадних панелей, які практично в готовому вигляді навішуються на об’єкті. Це здійснюється за допомогою заздалегідь підготовлених закладних елементів (кронштейнів).
Максимум скла, мінімум рам
Тренд максимізації скління залишається актуальним більш ніж століття й буде на піку ще багато років. Достатньо поглянути на нові штаб-квартири корпорацій у Каліфорнії, наприклад Adobe Founders Tower, штаб-квартиру NVIDIA, ZEISS Innovation Center та інші.
Розмір вікна «від підлоги до стелі» — відносна величина. Панорамне скління поверху стандартної висоти з технічного погляду жодних труднощів не викликає. Але досягти ефекту безшовності на великій площі не так просто. В ідеалі фасад-вітрина під будь-яким кутом і за будь-якого освітлення має видаватися єдиним цілим. Перед архітекторами, що прагнуть виконати запит замовника, постають питання:
- Як досягти візуальної безшовності?
- Панорамне скління + декоративний фасад: плюси, мінуси, підводні камені.
Ці «завдання із зірочкою» архітектор може сміливо переадресувати інженерам і технічним консультантам. Schüco підтримує своїх партнерів на усіх етапах, від консультації та проектування до монтажу й обслуговування.
Олексій Сверчков: «Справді, тренд у сучасній архітектурі — максимум скла, мінімум рам. Причому формати склопакетів вражають уяву, іноді вони можуть сягати 10 кв. м і мати вагу до 1 тони й навіть більше. Це додає багато технічних завдань, які мають бути вирішені. Серед іншого це:
- вітрові навантаження, адже при великих поривах вітру тиск на такий склопакет — величезний. Нам необхідно забезпечити його надійну фіксацію. Вирішити це завдання без будь-якого обрамлення практично неможливо;
- відведення конденсату. Через різницю температур зовні приміщення і зсередини, через перепади температур у різний час доби на склопакетах утворюється конденсат (здебільшого на торцях). Профільна система служить для його відведення;
- у профільній системі передбачені ущільнювачі та підкладки для забезпечення герметичності, а також збереження крайок склопакета від руйнування;
- при всьому прагненні до максимуму прозорості та повної відсутності рам ніхто не бажає втрачати можливість відчинити вікно й отримати доступ до свіжого повітря. Тому панорамне скління повинне бути функціональним: давати можливість вбудовувати елементи відкривання або хоча б провітрювання.
За можливості це все має бути ще й моторизоване і зав’язане на системі “розумного будинку”. І всі вимоги ми повинні задовольнити за допомогою практично непомітних профілів. У цьому й полягає, з одного боку, складність, а з іншого — мистецтво відповідати все новим і новим запитам».
Якщо замовник хоче перед консультацією самостійно оцінити можливі варіанти, то в класифікації систем Schüco серії, профілі яких значно тонші за стандартні варіанти виконання, називаються панорамними та мають абревіатуру PD (Panorama Design).
Олексій Сверчков: «Це здебільшого видима ширина 35 мм або ті системи, де профілі взагалі заховані в каркас будівлі. Наприклад, якщо ми розглянемо фасадні серії, то стійково-ригельна фасадна система з видимою шириною профілів 50 мм має абревіатуру FWS 50 (Façade Wall System). Система із шириною профілів 60 мм — FWS 60, а ось FWS 35 PD має видиму ширину профілів 35 мм і відповідно абревіатуру PD. Така ж логіка і з віконними системами AWS (Aluminium Window System): 75 — це стандартне вікно, а ось AWS 75 PD — уже з вузькою видимою шириною профілів, дизайнерськими ручками без жодних розеток і, звісно ж, повністю прихованою фурнітурою. Те ж саме і з розсувними системами: наприклад, ASE 80.HI (Aluminium Sliding Element) — це розсувна система класичного дизайну, а ось AS PD 75 — система з прихованими профілями. Видно тільки область стику стулок, і то всього 35 мм».
Рами бачите? А вони там є.
Доведеться розвіяти міф: безрамного скління фасаду не існує. Безрамне скління — це часто вживаний, але помилковий термін. Безрамними можна назвати інтер’єрні конструкції — двері чи вітрини, які повсюдно використовують в оформленні торгових галерей.
«Крім скла, ми можемо бачити максимум одну-дві завіси, на яких тримаються двері. Скло або просто стикується одне до іншого, або використовується невелика силіконова прокладка. Але це трохи інший сегмент, тут зовсім інші вимоги. Якщо ми говоримо про фасадне скління або мовою проєктувальників — про огороджувальні конструкції, то нам треба враховувати всі фактори, описані вище.
Реалізувати всі вимоги без будь-яких рам неможливо. Але для того, щоб створити ефект “безрамності”, профілі ховають у каркас будівлі. Знизу і зверху це чорнова підлога і стеля відповідно, а збоку — стіни. Стики між стулками роблять максимально вузькими (30–35 мм), що на тлі конструкції, наприклад, 6 м х 3 м практично непомітно. Такі системи мають дуже ефектний вигляд, але потребують надзвичайно ретельного опрацювання ще на стадії проєктування. Тут треба врахувати всі приховані дренажі, відводи води в лотки під поверхнею терасної дошки з їхнім подальшим підігрівом, установлення регульованих кронштейнів і багато іншого, що не може бути допрацьовано надалі. Також важливо передбачити можливі прогини плит перекриття, адже ширина отворів під такого роду конструкції іноді досягає 10 метрів», — каже комерційний директор Schüco Ukrainе.
Не тільки самі рами, але й фурнітура та системи керування вікнами повинні бути мінімально помітними, проте при цьому функціональними та зручними. У Schüco називають завдання поєднати естетику та комфорт найскладнішим, але водночас найцікавішим.
«Через вузьку видиму ширину профілів у нас практично не залишається місця для встановлення ручок, петель, замків або інших елементів фурнітури, а оснащення мехатронними компонентами відкривання виявляється взагалі надзавданням. Рішення лежать на перетині різних наук — від механіки до ергономіки. При цьому ми маємо враховувати і вартісні чинники, компоненти фурнітури для панорамних систем мають бути максимально уніфіковані з асортиментом класичних серій. Збільшення номенклатури веде до зростання складських запасів і, як наслідок, підвищення собівартості продукції.
Усі ці завдання були успішно реалізовані в нашій лінійці систем із панорамним дизайном. Наприклад, для вікон AWS 75 PD використовується наша стандартна прихована фурнітура Schüco AvanTec SimplySmart®. Для таких вікон ми випустили лише спеціальні ручки Design Line із надвузьким посадковим місцем для встановлення їх на профіль. Такі ручки не мають будь-яких видимих елементів (розетки, редуктори тощо) і можуть похизуватися унікальним зовнішнім виглядом. У відчиненому стані такі вікна є привабливими, адже приховані редуктори мають естетичні накладки зі спільними логотипами Schüco та безпосередньо компанії-виробника. Для розсувних елементів AS PD 75 ми застосовуємо ручки, інтегровані в профіль.
Для відчинення стулок вагою 600 кг і вище потрібне чимале зусилля, тому інтегрована в профіль ручка — ідеальне рішення. Ви можете відчинити стулку, вхопившись на будь-якій її висоті, а для полегшення орієнтування в темряві її можна обладнати м’яким LED-підсвічуванням. Так само, як і наші класичні системи, всі PD-серії можуть бути оснащені автоматикою, для цього в профілях є спеціальні пази, а всі компоненти ідеально між собою поєднуються. Ще один важливий момент: коли проект будинку передбачає різні системи панорамного скління, то ми повинні подбати про гармонію. Для цього в нас є алгоритм такої комбінації. Він називається Seamless Combination, так званий безшовний перехід від фасадних систем до розсувних і віконних».
Сьогодні рідкісна офісна чи комерційна будівля не має терас або садів на даху. Їхня функція — не тільки дати офісним співробітникам можливість провести перерву на свіжому повітрі просто неба. Тераси та повітряні сади сьогодні — чи не найпопулярніший простір для проведення корпоративів і неформальних заходів. У монтажі зовні крихких скляних огорож на балконах і терасах улюблених хмарних барів є свої тонкощі. В людей із фобією висоти, можливо, навіть фото таких балконів на вершині хмарочоса викликають тривогу. Але фахівці розвіюють ці страхи.
Олексій Сверчков: «Як ми вище вже зазначили, навантаження — один із найважливіших чинників. Чи то вітрове навантаження, чи то тиск, спричинений спиранням людини на конструкцію, — все повинно відповідати нормам, і для цього перед виходом у серію ми проводимо безліч випробувань. Вузька видима ширина профілів або їхнє приховане встановлення не означає їхню повну відсутність. Тому панорамні системи також безпечні, як і конструкції з класичним дизайном».
«Теплоскло»
Згідно з прогнозом дослідницького центру Gensler, глобальної компанії, що спеціалізується на архітектурі, дизайні та плануванні, 2024 рік — це точка остаточного переходу тенденції в базову умову: стійкий дизайн стає таким, що не підлягає обговоренню.
«Оскільки інтенсивні погодні та кліматичні зміни завдають шкоди штучному середовищу, стійкий дизайн перетворюється з можливості на обов’язок. У 2024 році в галузі будівництва та нерухомості в усьому світі визнають цінність екологічно свідомого проектування та його здатність знижувати ризики», — упевнені аналітики Gensler.
Таким чином, енергоефективність фасадів у рейтингу пріоритетів переміщається на перші позиції. Панорамне скління, незважаючи на свою ефемерність, в аспекті енергоефективності є одним із найкращих рішень завдяки тонким рамам.

Приклад використання панорамного скління на фасадах багатофункціональних міських будівель. Зображення надане Schüco Ukrainе
«Системи з панорамним склінням досить теплі, тому що в них низька частка алюмінієвих профілів у співвідношенні з площею скла. Як це парадоксально не звучало б, скло має більш низьку теплопровідність, ніж алюміній, отже, це більш “теплий” матеріал. Найслабшим у плані промерзання місцем є торець склопакета, але в наших системах він дуже добре утеплений, а глибина профілів дає змогу ефективно відділити холодну зону від теплої».
У Schüco прагнуть випереджати нормативні вимоги. У фасадній системі FWS 50.SI Green застосовуються ущільнювачі або притискні планки з відновлюваної сировини з тими самими технічними та структурними властивостями, що й базова система Schüco FW 50.SI. Її особливість — теплоізоляція, яка дозволяє створювати фасадні конструкції, що відповідають стандарту пасивного будинку.
Втім, уже незабаром скляні системи на фасадах будуть повсюдно не просто «теплими». Протягом останніх років інженери відшліфовують технологію фотогальванічного скла. Ще у 2015 році Кенго Кума реалізував проєкт Hikari — багатоповерхових будинків з фотоелектричним склінням у Ліоні для першого в Європі міського кварталу, де будівлі генерують енергії більше, ніж споживають. Але це окрема велика тема.
Комбіновані фасади
Комбінація навісних декоративних елементів зі склом дозволяє уникнути монотонної однорідності. Лаконізм веж Міса ван дер Рое та одноманітність перших ділових кварталів великих міст сьогодні вже здаються нудними. Архітектори прагнуть надати індивідуальності кожній будівлі, навіть якщо йдеться про «класичні хмарочоси».
Наприклад, будинок 277 — найвищий житловий будинок на П’ятій авеню у Нью-Йорку, просто мав відповідати контексту — висоткам споруди середини ХХ століття, а обмежена, затиснута з усіх боків ділянка дозволяла «пограти з формою». Але Рафаель Віньолі, автор безлічі видатних будівель у всьому світі, вирішив проблему, скомбінувавши панорамне скління з чорними панелями зі склофібробетону. Віньолі, який пішов із життя рік тому, в березні 2023, був провайдером лінійних комбінованих фасадів і вмів досягати приголомшливого ефекту, поєднуючи скло з металом, композитами, бетоном, каменем.

Комбінований фасад найвищого житлового будинку на П’ятій авеню, Нью-Йорк, США. Проєкт Rafael Viñoly Architects. Джерело зображення: Rafael Viñoly Architects
«Гладкі скляні вежі вже нікого не вражають, якщо вони, звісно, не 300 м заввишки або химерної біонічної форми. Найчастіше декоративні елементи мають і утилітарну функцію, вони часто служать сонцезахистом. Такий підхід у проектуванні використовували й раніше, наприклад, у 70-х–80-х роках їх відливали з бетону, зараз із розвитком будівельних технологій це найчастіше ламелі з алюмінію або композитного листа, яким можна надати будь-яку форму, комбінуючи водночас кольори та фактури, — пояснює Олексій Сверчков. — Поєднати панорамність і велику кількість декору зовні — це нелегке завдання архітектора. Якщо зовнішні елементи слугують сонцезахистом, то їхні параметри, розміщення на фасаді, кут розвороту чи нахилу та поєднання зі склінням суворо підпорядковуються законам інсоляції, тобто положення сонця для конкретно взятої будівлі. Для цього використовуються спеціальні розрахункові комплекси, які дають змогу до міліметра сконструювати ламелі з максимальним ефективним сонцезахистом. Також важливо зважати на те, як такі елементи обслуговуватимуть, як поводитимуться декоративні компоненти за різної погоди (вітер, дощ, сніг, лід, нагрівання на сонці тощо). Ну і головне, під час гонитви за вишуканим зовнішнім виглядом не забути про людину, який у неї при цьому всьому буде краєвид із вікна?».
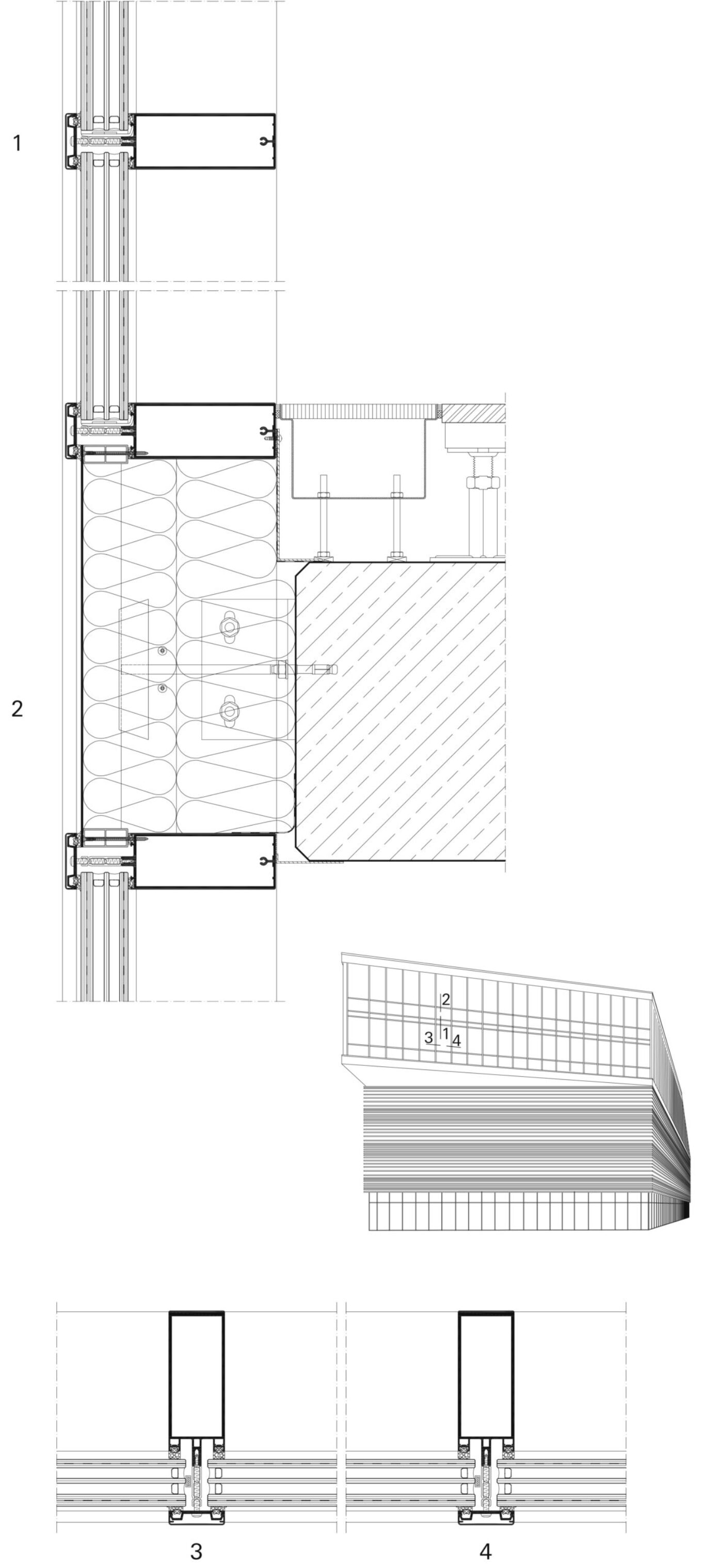
Оскільки навісні декоративні та функціональні елементи створюють додаткове навантаження на фасад, то в Schüco розробили спеціальне перевірене рішення — виносні кронштейни, які пронизують каркас фасаду, водночас не створюючи містків холоду й не порушуючи герметичності площини фасаду. Навісні елементи кріпляться до цих виносних кронштейнів, та вони розраховані на дуже великі навантаження. На них також можна монтувати трапи для обслуговування фасадів.
Ще одна специфіка комбінованих фасадів (скління + навісні декоративні елементи) — це гранична точність з’єднання в єдину конструкцію найрізноманітніших елементів і матеріалів.

Комбінований фасад найвищого житлового будинку на П’ятій авеню, Нью-Йорк, США. Джерело зображення: Rafael Viñoly Architects
Олексій Сверчков: «Рішення є: це елементні фасади, тобто технологія виготовлення готових елементів у цеху з їх подальшим швидким монтажем на об’єкті. На відміну від класичних стійково-ригельних фасадів, у цьому випадку відсоток префабрикації (роботи, виконаної в заводських умовах) доходить до 80%. Лише 20% робіт залишається виконати безпосередньо на самому будмайданчику, де якраз і спливають усі негативні чинники, починаючи від добре відомого нам усім людського чинника й закінчуючи погодними умовами.
Для стандартних стійково-ригельних фасадів все рівно навпаки: 20% робіт у цеху, а 80% робіт проводиться на об’єкті. Коли ж у нас фасади складні, з великою кількістю навісного декору, ситуація ускладнюється. Помилка під час монтажу може призвести до продування або протікання фасаду, в гіршому випадку — до відриву навісних компонентів і летальних випадків. Тому для реалізації таких проєктів намагаються застосовувати технологію елементних фасадів, де кожен елемент виготовляють у заводських умовах за допомогою автоматизованих верстатів, він проходить тестування та багатоступеневий контроль якості. Лише після цього він надходить на будмайданчик для подальшого монтажу на об’єкті. Забезпечити таку точність і контроль якості на самому будівництві просто неможливо.
Наступний фактор — це швидкість монтажу, у разі елементних фасадів темпи збільшуються в рази. А той чинник, що монтаж фасадів може здійснюватися практично паралельно з відливанням бетонного каркаса будівлі, робить цю технологію просто безальтернативною, особливо під час висотного будівництва. Також під час монтажу елементних фасадів не потрібні будівельні риштування або люльки, що робить скління менш трудомістким і не вимагає величезної кількості людей. За цією технологією майбутнє».
До речі, префабрикація — ще один із глобальних галузевих трендів на 2024–2030 роки. Скорочення часу будівництва, контроль якості, мінімізація відходів і при цьому можливість створювати унікальний дизайн, міксуючи різноманітні матеріали зі склом, що залишається фаворитом усіх часів і архітекторів… Ну що, ми вас переконали?




