«Власники хотіли створити витончений комфортний простір — оазис догляду за собою. Натуральні матеріали, природні фактури, м’яка кольорова гама та фігурні елементи декору нагадують про піщаний пляж. Вінтажні меблі, дерев’яні деталі й оригінальні сценарії освітлення створюють затишок у чистому мінімалістичному просторі», — так описують Jolly Beauty Salon головні дизайнерки проєкту — Ріна Ловко та Дарина Шпурик.
Справді, інтер’єри салону витримані у світлій пісочній гамі, подекуди доповненій металевими деталями й акцентними фактурами натурального каменю. Гармонійний та збалансований інтер’єр, не перевантажений зайвим декором, водночас навіює атмосферу просторих елегантних холів у курортних готелях і глиняних домівок у теплих містечках — затишних, світлих, сповнених спокою. Поєднуючи в собі найкраще від кожної із цих асоціацій, Jolly Beauty Salon постає перед гостями ідеальним місцем, де можна побути наодинці із собою, дбаючи про себе, даючи собі час, аби нікуди не поспішати, вдихнути, видихнути.
«Власники хотіли створити витончений комфортний простір — оазис догляду за собою», – діляться дизайнерки Ріна Ловко та Дарина Шпурик
Об’єкт, що раніше був перукарнею, розташований на першому поверсі будівлі 50-х років, на бульварі Лесі Українки. Перед командою Rina Lovko Studio постало завдання розмістити на скромних 77 м2 усі необхідні функціональні зони, а сам салон органічно вплести в канву будівлі та вулиці. І, йдучи на уявну екскурсію, ми, як і всі майбутні відвідувачі Jolly Beauty Salon, почнемо з головного входу.

Вхід до салону оздоблений плитами з натурального травертину. Унікальний малюнок каменю перегукується з фактурою фасаду будівлі. Фото: Євген Авраменко
Вулиця має значний нахил, і вхід до салону представлений навісним ґанком зі сходами. Вхідна група має облицювання плитами з натурального каменю. Травертин, який ми також зустрінемо в інтер’єрах салону, покриває сходи, платформу ґанку, а також портал із навісом, що обрамляють вхідні двері. Обраний камінь має унікальний малюнок, що водночас звертає на себе увагу та перегукується зі стінами будівлі.
Природна текстура травертину і його «рідні» відтінки забезпечують візуальний перехід від однотонного попелясто-пісочного цоколя в зоні вхідної групи до фактурної «голої» цегли теплішого відтінку, що нею оздоблений фасад будинку

Натуральний камінь у візуальній концепції проєкту відіграє роль провідного текстурного акценту. Фото: Євген Авраменко
«Ми очистили фасад від візуального шуму, вивісок і графіті, аби акцентувати увагу безпосередньо на вхідній групі салону, зокрема на її геометрії та натуральних текстурах. При цьому ми мали створити комфортний вхід зі зручними сходами, які б не заважали руху пішоходів. Навіс і ґанок зі сходами не мають видимих кріплень. Травертин, використаний для облицювання, ми шукали по всій Україні, і знайшли його буквально останньої миті», — діляться в Rina Lovko Studio.

В зоні очікування дизайнери розмістили вінтажні крісла від Walter Knoll у бежевому велюрі, а також кавовий столик із неіржавної сталі з травертиновою стільницею. Фото: Євген Авраменко

В зоні очікування дизайнери розмістили вінтажні крісла від Walter Knoll у бежевому велюрі, а також кавовий столик із неіржавної сталі з травертиновою стільницею. Фото: Євген Авраменко
Незважаючи на невелику площу об’єкта, загалом на реконструкцію простору та вхідної групи пішло 6 місяців. Дизайнери дуже уважно поставилися до підбору відтінків і матеріалів, доклавши всіх зусиль, щоб фінальний вигляд салону максимально відповідав дизайн-проєкту. З тих самих міркувань усі меблі, окрім крісел, були виконані за кресленнями, створеними спеціально для проєкту Jolly Beauty Salon. На думку дизайнерів, лише індивідуально розроблені меблі могли максимально гармонійно вписатись у задуману ними візуальну геометрію для проєкту, що має такий скромний метраж.
Гармонійний та збалансований інтер’єр, не перевантажений зайвим декором, водночас навіює атмосферу просторих елегантних холів у курортних готелях і глиняних домівок у теплих містечках
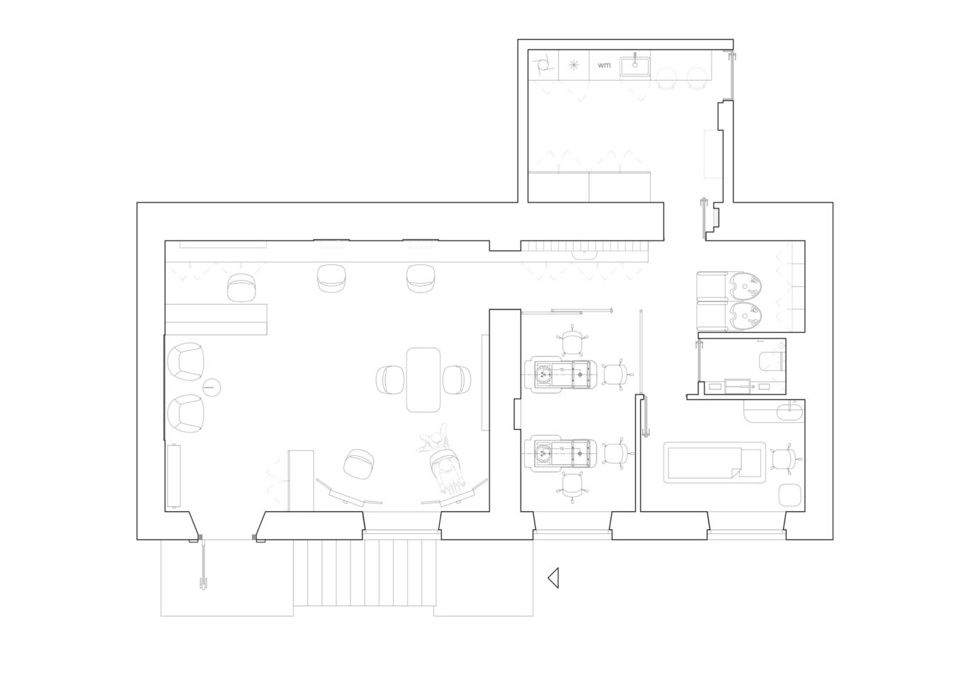
Внутрішній простір Jolly Beauty Salon поділений на зони: зона очікування, ресепшн, зона продажу косметики, 4 робочих місця перукарів і стилістів, манікюрний стіл, 2 зони для паралельних послуг, зона для миття волосся, колорбар, масажно-косметологічний кабінет, кухня та роздягальня для персоналу і санвузол.

Травертин в інтер’єрі салону нерідко взаємодіє з текстурою натурального дубу. Такий тандем, на думку дизайнерів, має гармонійне поєднання відтінків, а також вдало балансує з обраним для стін попелясто-пісочним кольором. Фото: Євген Авраменко
Біля входу в салон клієнти можуть роздивитися косметику, що представлена для продажу на спеціальному стелажі. В зоні очікування дизайнери розмістили вінтажні крісла від Walter Knoll у бежевому велюрі, а також кавовий столик із неіржавної сталі з травертиновою стільницею.
За зоною очікування нас зустрічає стійка ресепшн монолітної форми, виконана з кварцу. Дзеркало на стіні зліва розширює простір салону, а також створює візуальну ілюзію: стійка, продовжена власним відображенням, неначе має Т-подібну форму. Там же, за стійкою ресепшн, на металевих трубках із прихованим кріпленням розміщені лаконічні скляні полиці для косметики. Стіна за стійкою частково оздоблена натуральним каменем і зонально продовжується вже робочими місцями для перукарів і стилістів.
Інтер’єри Jolly Beauty Salon витримані у витонченій манері мінімалізму, характерній для Ріни Ловко та проєктів її студії

Усі меблі в салоні, окрім крісел, були виконані за авторськими кресленнями. На думку дизайнерів, лише індивідуально розроблені меблі могли максимально гармонійно вписатись у задуману ними візуальну геометрію проєкту. Фото: Євген Авраменко
«Для оздоблення центральної стіни ми обрали натуральний камінь — червоний травертин, змінивши його оригінальний тон за допомогою техніки ручного матування. Щоб створити ефект природного зламу каменю, край обробляли вручну. Рішення з травертином є не тільки естетичним, але й функціональним. Якби там, де розміщені робочі місця стилістів, ми просто пофарбували стіну в той самий пісочний відтінок, що й увесь інтер’єр, ця зона швидко втратила б свій естетичний вигляд через механічні ушкодження і сліди бруду. А так натуральний камінь захищає стіну в зоні ніг. До того ж ми передбачили там підніжки, виконані з неіржавної сталі та вкручені безпосередньо у травертинову плиту», — розповідають авторки проєкту.

Jolly Beauty Salon постає перед гостями ідеальним місцем, де можна побути наодинці із собою, дбаючи про себе, даючи собі час, аби нікуди не поспішати, вдихнути, видихнути. Фото: Євген Авраменко
Загалом інтер’єри салону витримані у витонченій манері мінімалізму, такій характерній для Ріни Ловко та проєктів її студії. Навіть обов’язкові для роботи елементи салону мають у дизайн-проєкті свій особливий візуальний шарм. Так, наприклад, дзеркала для візажистів виконані з дубового шпону у вигляді традиційних трюмо. Таке рішення додає затишку й римується з вінтажними кріслами. Дзеркала мають додаткове освітлення, а їхні стійки виконані з металу під гальванічним покриттям з його характерними кольоровими розводами. Дерев’яні меблі та масажний стіл виконані у шпоні дуба, чий природний відтінок максимально гармонійно поєднується з обраним для оздоблення стін салону пісочним кольором.

Дзеркала для візажистів виконані з дубового шпону у вигляді традиційних трюмо. Таке рішення додає затишку й римується з вінтажними кріслами Walter Knoll, що розміщені в зоні очікування. Фото: Євген Авраменко
Стільниця колорбару повторює матеріал зони ресепшена й так само виготовлена з кварцу. Теплий тон меблів доповнює загальну кольорову гаму, а їх матеріал не вбирає фарбу й агресивні речовини. Колорбар і мийка для волосся розміщені навпроти кабінету, що дає змогу ефективно використовувати простір. Зона паралельних послуг відділена скляною розсувною перегородкою у формі букви Г. Частина перегородки є матованою, щоб створити додаткове відчуття приватності для клієнтів під час процедур. У цій зоні розташовані багатофункціональні крісла від італійського бренду Gamma & Bross.
Санвузол салону виконаний також у мінімалізмі з натуральними акцентами. Його інтер’єр витриманий у простих формах, унітаз був підібраний у тому ж кольорі, що й оздоблення стін, а раковина зроблена з травертину — того самого, що був використаний в оздобленні центральної стіни салону.

В інтер’єрі санвузла дизайнери використали таке саме поєднання “теплого” травертину з кольором піску, що й в основному приміщенні. Фото: Євген Авраменко
Також особливу увагу в проєкті Jolly Beauty Salon команда Rina Lovko Studio приділила освітленню. «Одним з акцентів інтер’єру є ілюмінована стеля, що переходить у дзеркало. Дзеркало візуально розширює простір, який вміщує максимум функцій на мінімальній кількості квадратних метрів. Стеля виконана із сітки з холодними та теплими діодами, що створюють ефект денного світла. Сітка покрита PVC-полотном, а чорні профілі створюють графічний чіткий контур. По обидва боки від лайтбокса ми знизили рівень стелі — в опусках розташована система вентиляції та кондиціювання. Проєкт із вентиляції був одним із найскладніших етапів. Ми використали прийом тонких щілин, а наші інженери змогли якісно спроєктувати клімат, з урахуванням усіх обмежень», — діляться авторки проєкту.
Підсумовуючи власні роздуми про повернення до роботи під час війни і говорячи про подальші перспективи, Ріна Ловко, дизайнерка та засновниця Rina Lovko Studio, каже таке:
«Час, що ми переживаємо зараз, тяжкий і непередбачуваний. Ми намагаємося проживати його, сподіваючись на те, що скоро зупиняться вбивства і прийде мир. Втім, ми також усвідомлюємо, що маємо жити далі — жити, щоб створювати красу та робити світ добрішим».
Архітектор: Rina Lovko Studio
Тип: Салон краси
Рік: 2022
Фото: Євген Авраменко
Локація: Україна, Київ
Площа — 77 м2


