Римо-католицька церква Матері Божої Гваделупської розташована на вулиці Бродвей, втім, не в Нью-Йорку, а в Сан-Франциско, та є історичною пам’яткою Каліфорнії. Побудована у 1880 р. будівля зазнала руйнації через землетрус та пожежу 1906 р. Храм реконструювали у 1912 р. у стилі «Відродження місії» (рух на відродження рис колоніальної архітектури, характерної для іспанських місій у Каліфорнії). Будівля стала однією з перших церков у США, споруджених із залізобетону.
До 50‑х рр. у храмі активно проводили богослужіння, але поступово відвідувачів ставало все менше. Врешті-решт на початку 1990‑х рр. його було зачинено. Понад чверть століття пам’ятка була занедбаною, тільки напівпідвальні приміщення використовувалися як школа. У 2016 р. будівлю нарешті викупив інвестор. Він вирішив зробити там культурно-освітній центр 906 World (будівля носить номер 906 по вулиці Бродвей).
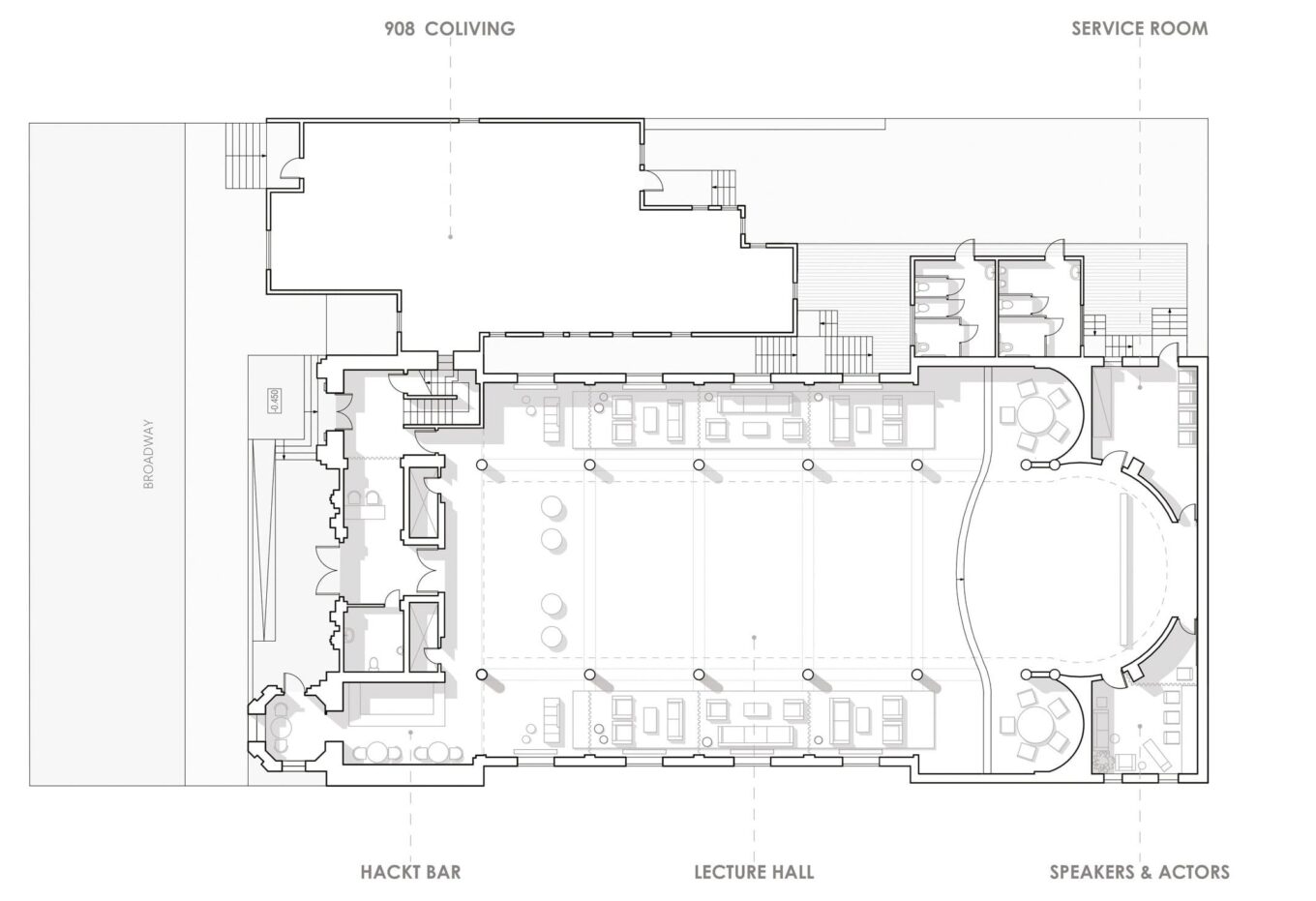
Столітня будівля храму стала частиною багатофункціонального комплексу, проєктування якого довірили київській студії balbek bureau. У сусідній житловій будівлі розмістився колівінг, у підвальному приміщенні церкви облаштували навчальний центр, а основний хол собору, відповідно, став простором для проведення різних заходів: лекцій, презентацій, виставок та фестивалів. Проєкт публічного простору та його реалізація тривали близько двох років.

balbek bureau працювало в Сан-Франциско над цілим комплексом, що складається з триповерхового житлового будинку, трансформованого у колівінг, старовинної церкви, обладнаної під івент-хол, та автономного навчального простору
Початковим завданням, що стояло перед архітекторами, було відновити архітектурні елементи інтер’єру відповідно до історичної довідки й при цьому адаптувати простір під нову функцію. Крім того, всі елементи мали встановлюватися методом сухої зборки, щоб не порушити несучі конструкції будівлі.
Пам’ятка архітектури за стилем нагадує колоніальні храми в Мексиці та Південній Америці
Посеред головної зали церкви архітектори організували посадку, яка трансформується під різний формат заходів та різну кількість гостей (максимум 200 осіб). У лівому і правому крилі використали подіумні конструкції зі стаціонарними меблевими групами, які мають задавати загальний тон дизайну. Простір, що межує з головною залою, розділили на допоміжні приміщення.

Церква Матері Божої Гваделупської розташована в мальовничому районі Сан-Франциско за адресою: 906 Broadway
Історичний характер церкви вирішили підкреслити за допомогою сучасних форм. Так, у вівтарній частині колишнього храму встановили білий натяжний екран 11 м заввишки і площею близько 80 кв. м, що за формою повторює арочні конструкції будівлі. Ззаду екран оснащений ультракороткофокусним проєктором зворотної проєкції. Така технологія допомагає запобігти візуальному шуму.
Проєкт 906 World є прикладом дбайливого ставлення до історичного й сакрального минулого будівлі
На стінах нового івент-холу збереглися фрески з біблійними сюжетами, втім, вітражі з такими ж мотивами архітектори прикрили спеціально розробленими конструкціями з натягнутою світлопроникною тканиною. Таке рішення, з одного боку, дещо приглушує церковну тематику, а з іншого — не перешкоджає денному освітленню приміщення.
Також автори проєкту передбачили різні сценарії штучного освітлення приміщення — під різні формати заходів та подій. Частина джерел світла спрямована на підкреслення архітектурних форм інтер’єру, а інша — на створення тематичних ефектів.
Новий публічний простір може адаптуватися під різний формат заходів та різну кількість відвідувачів
Наразі Церква Матері Божої Гваделупської, що колись мала багато прочан, продовжує збирати людей — утім, вже в іншій своїй іпостасі, як культурно-освітній центр та подієвий майданчик 906 World. Хоча історичний образ церкви зазнав мінімальних втручань, минуле будівлі не заважає проводити там найрізноманітніші заходи — від занять йогою та сесій з медитації до феміністичних конференцій та фестивалів віртуальної реальності й електронної музики.






