Архітектори завершили перший етап проєктування реконструкції парку – заміну мереж та комунікацій, а також покриття доріжок та комплексне вирішення освітлення території парку.
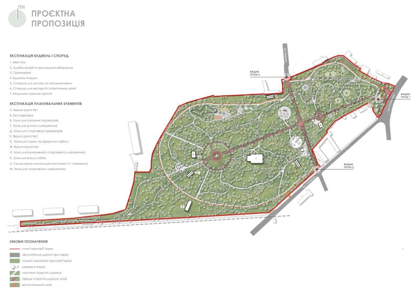
Проєкт реконструкції передбачає комплексне оновлення всієї території.
Там облаштують модернізовані вхідні групи, тактильну плитку для людей з порушенням зору та інформаційні стенди зі шрифтом Брайля. Також будуть спеціальні укриття, які стануть частиною благоустрою після закінчення війни.
У парку обладнають питні фонтани, вело- і пішохідні доріжки, історичні елементи парку збережуть та інтерують в оновлений простір. Будуть дитячі ігрові та спортивні майданчики з екологічним покриттям і вбиральні, адаптовані для людей з інвалідністю.
Крім того, облаштують відкриті галявини і простори для проведення заходів, а також інтерактивну зону для тварин.
Читайте також:
Яким буде занедбаний промисловий район на сході Неаполя – бачення Zaha Hadid Architects



