Giro urbano. Koktelka bar y bistró en Kharkiv

Arquitecto
Estudio YOVA YAGER
tipo
bar
Estado
implementado
Año
2021
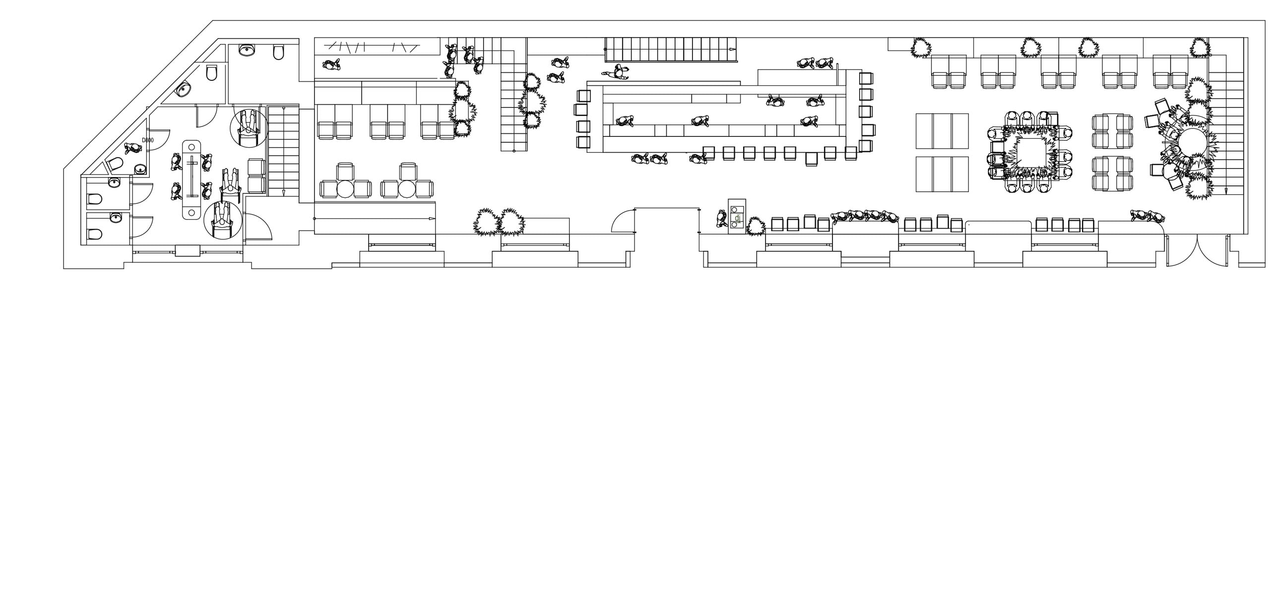
Tamaño
Plaza 563. m

La nueva generación de taberneros y asiduos elige establecimientos con un ambiente democrático, un servicio sincero y una mezcla de referencias urbanas en el interior, que da cabida a los detalles de estilo retro, las soluciones exteriores y el humor. Esto es lo que sucedió en Kharkiv, donde un bar y bistro de la ciudad abrió este verano en la calle central.Koktelka"/Koktelka según el proyecto de Yova Yager.

Un espacio único que de repente resultó ser libre, y enamorando a los proyectos Estudio YOVA YAGER literalmente no dejó otra opción a los futuros propietarios de Koktelka: tuvieron que arriesgarse y abrir su segundo establecimiento en Kharkiv. El formato, un bar de la ciudad, se determinó de inmediato, y la ubicación central (cruce de las calles Sumska y Svoboda) y un edificio con historia sugirieron puntos de referencia de diseño.

Como suele suceder, el hecho de que a los clientes les haya gustado durante mucho tiempo el estilo de trabajo de Yova Jager cumplió con las expectativas: resultó que ella y el diseñador realmente "hablaban el mismo idioma". La investigación, que precede a todos los proyectos del estudio YOVA YAGER, fue realizada por el equipo junto con los clientes, quienes se convirtieron en guías para Yova durante el desarrollo del concepto en la historia y la vida urbana de Kharkiv, sobre la cual el diseñador sabía poco antes. el inicio del proyecto.

“Al principio solo caminábamos por la ciudad, a lugares icónicos, cogíamos el metro, mirabamos las estaciones, estudiábamos, reflexionábamos. No teníamos una idea clara de lo que íbamos a hacer. Con cada visita, agregamos algo, superponiendo un trazo sobre otro. Fotografié fragmentos de fachadas, ventanas u otros detalles del entorno urbano, y de repente me pasó algo que luego se convirtió en una idea para el interior. Por ejemplo, los bloques de vidrio del piso del sótano, que se ven en la ciudad, aparecieron después aquí, no así, pero el mensaje era de allí. Nunca sabes qué te puede inspirar en una ciudad desconocida. Solo tienes que caminar con él", recuerda Yova Jager.

La diseñadora creó su primer proyecto en el campo de la hospitalidad hace quince años, cuando aún era estudiante de KNUBA, por lo que no hay coquetería profesional en las palabras "el diseño en Koktelka es importante, pero no lo principal". Los bares, cafés y restaurantes exitosos, según Yova, se logran cuando los tres componentes principales (comida, servicio y "diseño + atmósfera") están en equilibrio y nadie se esfuerza por tomar el primer lugar.

El diseño ayuda a atraer a los visitantes, a "atraerlos" por primera vez, y luego la tarea de la comida y el servicio es hacer que quieran volver y crear una sensación de que es acogedor, sabroso y que eres bienvenido aquí. El diseño está diseñado para revelar la idea y el concepto del establecimiento a través de imágenes visuales, materiales, estilísticas, es decir, a través de todo lo que se lee como una impresión general del espacio en el que te sientes bien o no.

La moda y las tendencias son efímeras, y el bar-bistronomía urbano Koktelka, tal como lo planearon sus propietarios y diseñador, debería convertirse en una parte integral del ADN de Kharkiv: "Queríamos dar la impresión de que Koktelka y yo siempre hemos estado aquí", dice Yova. . En particular, tuvo como objetivo la cuidadosa reconstrucción de la fachada histórica del edificio, que desde su construcción en la década de 1950, ha albergado el instituto del proyecto Giprocox de importancia para toda la Unión, y el local del bar hasta el asentamiento de "nuevos residentes". , en particular fue la farmacia No. 1 todo este tiempo.

Se reemplazaron las ventanas, se instalaron nuevas puertas de roble, hechas según un diseño auténtico, y se restauró la fachada. Hicieron un letrero con letras delicadas sin LED e iluminaron la fachada con una luz cálida tradicional, que enfatiza la belleza del edificio. Las "capas culturales" dentro de las instalaciones también se limpiaron cuidadosamente, como durante las excavaciones arqueológicas, y se conservaron. Los nuevos detalles agregados a ellos formaron un rompecabezas conjunto, palo a palo.

El desmantelamiento se planteó con la intención principal de no dañar y preservar lo más posible los parámetros del local heredados de los diseñadores: la altura del techo de 6 metros y el espacio. Fue necesario reemplazar y reforzar el antiguo techo entre el primer piso y el sótano, donde estaba ubicada la cocina, porque el piso literalmente vibraba por el suelo y el transporte subterráneo (una de las ramas del metro Kharkiv pasa por debajo de la calle Sumska, y un tranvía corre cerca).

Cuando surgió la duda sobre un nuevo revestimiento para el suelo, la solución llegó de inmediato: "terrazo soviético" con virutas de granito, que en el pasado era casi el material más utilizado en los espacios públicos. El piso del instituto del proyecto, originario de los años 50, fue realizado con la misma técnica, y en el momento en que se iniciaron las obras de remodelación del local de la antigua farmacia, el piso recién estaba siendo renovado, y se logró atraer a los especialistas a la instalación, preservando la conexión de tiempos y la integridad general del edificio. Además del techo, se desmanteló uno de los dos balcones interiores.

A pesar de que el número de asientos ciertamente juega un papel importante en los establecimientos, era importante para el diseñador y los propietarios enfatizar la belleza de las instalaciones: "El aforo era máximo, alrededor de 100 asientos, pero no queríamos construir un segundo piso y trató de colocar a casi todos en el mismo nivel.

Mantuvimos el balcón de la izquierda, que obtuvimos de la farmacia, le hicimos nuevas escaleras y barandillas, pusimos algunos asientos más allí y planeamos un pasaje al bar clandestino en el segundo piso, que esperamos abrir el próximo año. Y el mismo balcón de la derecha fue desmantelado para crear un gran espacio limpio", dice Yova.

La aparición de todos los elementos "Instagram" en el interior obedeció al concepto y formato del establecimiento, en el que destaca la ciudad con su ambiente ecléctico y sus habitantes tan diversos. Según Yova, el interior del bar es similar al entorno urbano, en el que una época se superpone a otra, y todos encuentran en ella algo propio, nativo: "Esta es la ciudad en la que vives, fusiona con él y complementarlo".

Por lo tanto, apareció un "mural" en la pared, basado en los motivos del panel de mosaico "Lenin y la ciencia" conocido por muchos residentes de Kharkiv desde la infancia, que decora el edificio del Instituto de Bajas Temperaturas, y se complementó con el marcador actual de la día - una línea de "me gusta", y la figura del líder se montó con la cara de un niño en el espíritu del arte callejero de Banksy. El elemento principal del paisajismo, al que la diseñadora asigna uno de los papeles importantes en todos sus proyectos, fue un árbol vivo del género Butsida, de 3,5 m de altura, en una tina de hormigón, en cuyo perímetro se colocó una mesa con barra. se formaron las heces.

“Nos dimos a la tarea de borrar la frontera entre la ciudad y el interior. Para ello, tomaron un fragmento de la fachada, que la gente asocia con la ciudad, y lo trasladaron al interior, para que los visitantes tengan la sensación de estar fuera. Los grandes ventanales y la vegetación viva con árboles altos contribuyen a esto", dice el diseñador.

La forma de los dos enormes candelabros es una referencia a los espacios públicos pomposos de la era soviética, pero el material del que están hechos -una cadena de metal en lugar de colgantes de cristal- ya es una técnica posmoderna, una sonrisa irónica de la generación más joven. , que es ajena al patetismo de las instituciones estatales. El zócalo de estuco en el techo, que se conservó de la araña original, se decidió dejar como un recuerdo del pasado, así como el cable que sobresalía del techo.

“Anteriormente había una gran lámpara de araña colgada en las instalaciones de la farmacia y nos gustó esta idea. No queríamos sobresaturar el espacio con diseño, pero tratamos de preservar la solemnidad que se debía a la altura del techo, mientras lo equilibrábamos con brutalidad, y usamos otro elemento exterior para esto: cadenas de metal, que en un formato más masivo. a menudo se usaban como cercas a lo largo de las aceras y alrededor de los árboles”, dice Yova.

En contraste con el metal fundido plateado de la lámpara de araña, las lámparas de mesa oxidadas a propósito hechas a medida, cuyo diseño recuerda a los interiores retro, y la ejecución captura tanto la ironía como un toque de arqueología. El cartel de GORBAR detrás de la barra que saluda a todos los que entran está hecho de letras de metal que también se han oxidado a propósito para dar al lugar una sensación de antigüedad y existencia duradera.

"Equilibramos entre el metal envejecido y el natural, para que no hubiera demasiado "desván" en el interior", dice Yova. La barra de bar de casi diez metros de largo con un bypass circular es el elemento central de Koktelka y un motivo de orgullo para todo el equipo que trabajó en el proyecto. En sus fachadas se integraron antiguas taquillas de madera con tiradores de cerámica heredados de la farmacia.

Una gran cantidad de muebles diferentes, incluidos tipos de sillas, refleja la heterogeneidad de la ciudad y sus residentes: "Tenemos un bar de la ciudad, y la ciudad no puede tener muchos muebles iguales. Así que decidimos jugar un juego y recolectamos muebles de varias fuentes: algunos antiguos del mercado de pulgas, algunos de marca y algunos que hicimos por encargo. Son de diferentes alturas, diferentes dimensiones, hechos de diferentes materiales”, dice el diseñador.

Esta acción ecléctica tiene lugar en decoraciones sencillas: las paredes están enlucidas y parcialmente cubiertas con azulejos blancos, un elemento icónico para los interiores de los estudios de YOVA YAGER, al igual que el aplique en forma de pezones, porque, según Yova, "los pezones son importantes , papilas gustativas, aunque todos los pezones son importantes".

Para separar visualmente las paredes, en el espacio alargado de la sala principal con un área de 300 metros cuadrados. m frente a las ventanas, se colocaron asimétricamente dos espejos de 4 m de altura que, gracias a las barras de madera y un marco, crean la ilusión de ventanas adicionales, que reflejan la calle, y los visitantes se encuentran dentro de la historia de la ciudad.

Insignificantes, a primera vista, elementos del interior, como una alfombra en una de las zonas, libros en los estantes, candelabros de cristal en el balcón, dan al espacio un carácter cálido, de "lámpara", tocando acordes nostálgicos sobre las vacaciones pasadas en Grandma's, donde siempre éramos felices donde hacía calor, sabroso y acogedor: la misma receta para el "bar-restaurante perfecto", que en ese momento ni siquiera pensamos y no sospechamos.

La alfombra, como nos dijo Yova, es propiedad de la clienta y pertenecía a su abuela, al igual que los libros. La veracidad de cada detalle es probablemente otro ingrediente necesario para la elaboración de un plato complejo llamado diseño de hostelería, con el que todo resultó en Koktelka. Como con "umami", si continuamos con la analogía con las recetas culinarias.

El quinto sabor fue el diseño gráfico creado en colaboración con el estudio Looch: "Estoy feliz de haberlos conocido en un proyecto anterior", dice Yova Jager. — Looch Studio es mi amor. Me gusta hacer interiores con humor, con ironía, y los diseñadores de Looch captan y transmiten a la perfección el estado de ánimo adecuado. Para mí, esta es la marca y la presentación gráfica perfectas.

Looch no solo creó un estilo corporativo, sino que también continúa trabajando con los clientes: actualizan el menú, hacen "merchandising": gráficos para platos, carteles, decoración de Año Nuevo. La marca es moderna y complementa el interior inherentemente neutral. Gracias a los gráficos, pudimos darle un carácter: un poco descarado, un poco irónico, un poco infantil y sin pretender ser un genio".

El primer elemento que Looch introdujo directamente en el interior del bar fue un cuadro con la imagen de una llama. El lugar de la pintura, pero con la imagen de un gallo (en alusión a la etimología de la palabra "cóctel"), se determinó frente a la entrada en el renderizado.

Los diseñadores gráficos dibujaron varios personajes, de los cuales se eligieron tres: un perro, un gallo y una llama. A los clientes y al diseñador les pareció que el personaje más característico era la llama, por lo que se decidió convertirla en el símbolo principal de Koktelka, y la imagen del gallo "rodó" en la pared del "mosaico"; el dibujo del perro quedó "sobre la mesa" por ahora.

Por último, pero no menos importante, está el tema del diseño consciente, que Yova Jager se esfuerza por implementar en todos sus proyectos. En Koktelka, se manifestó, en primer lugar, en la restauración de la fachada, en la restauración y conservación de los elementos interiores del antiguo "inquilino": la farmacia. En segundo lugar, en el uso de muebles vintage. En tercer lugar, en un llamamiento al fabricante local que elaboraba todos los platos, excepto los de cristal. Y, en cuarto lugar, en el desarrollo de una estrategia sostenible a largo plazo para varios procesos de restauración.

Esto incluye clasificar los residuos, reciclar parte del vaso en servilleteros y vajillas, usar vajillas ecológicas y plástico reciclable etiquetado para llevar, así como servilletas y toallas de papel recicladas en todo el establecimiento, ya que las servilletas blancas y de colores no son reciclables. , y si te niegas a usarlos, puedes salvar al menos un árbol en un mes. Los clientes han estado interesados ​​en este tema antes, y el conocimiento y la experiencia de Yova los ayudan gradualmente, paso a paso, a introducir los principios del desarrollo sostenible en la vida cotidiana de su institución.

Así, con la mano ligera de todo el equipo del proyecto, el concepto de giros posmodernos y clásicos canónicos a un precio justo, anunciado en el bar y bistró Koktelka con respecto a los cócteles, se convirtió en un giro sarcástico de los supersticiosos residentes de Kharkiv que aman su ciudad.

 

 

Galleria: Sergey Polyushko, Asya Shalai

Texto: Kateryna Oshemkova